
La Parroquia de Cristo Obrero en Atlántida es una de las obras del ingeniero Eladio Dieste, proyectada y construida entre 1958 y 1960 época en la que Dieste había desarrollado su sistema constructivo en láminas de ladrillo reforzado, curvadas de manera de que adquirieran resistencia, aplicándolo a galpones y naves industriales, etc...

En la Iglesia de Atlántida utiliza los mismos principios estructurales y constructivos para un problema similar; una iglesia básicamente es un recinto cubierto con grandes luces. Sin embargo, las soluciones de cubiertas de sheds que Dieste había utilizado en otros proyectos son superadas por el tratamiento de la estructura y la luz que hace en esta iglesia.




La lámina curvada de los muros – que a nivel de suelo es una línea de 30 cm de espesor – adquiere resistencia a medida que se eleva, para finalmente unirse solidariamente a la cubierta. Como explica Dieste en una entrevista: “Yo creo que lo que debemos procurar es eso: dentro de lo posible, resistir con forma, y no con acumulación de material, porque es lo que supone un respeto por el material y un respeto por el prójimo, en último caso, que es el que ha hecho el materia”.


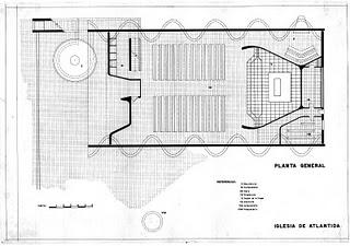
Los muros de la iglesia son una serie de conoides, que formando una superficie curva se elevan desde una línea recta en el piso a una serie de profundas curvas sinusoidales en la parte superior del muro. El techo es una bóveda continua de doble curvatura, calculada de tal forma que las curvas del techo y de la pared se encuentran entre sí, notablemente, en cierto nivel. Esta etapa de Dieste es todavía un momento temprano en su desarrollo de la bóveda de doble curvatura y es radicalmente innovadora en la relación entre techo y muro.

La entrada a la iglesia se hace por la fachada norte, que es la dirección del sol. Sin embargo, debe considerarse antes la entrada simbólica a la iglesia, que subraya el compromiso de Dieste con la ceremonia, con el rito del bautismo y con el movimiento en la iglesia. Antes de la fachada y a la izquierda hay una simple y pequeña estructura en ladrillo, que alberga a una escalera, la que desciende hasta un baptisterio subterráneo, con una claraboya de ónix.




Tras esta entrada sacramental a la iglesia, un pasillo conduce bajo la iglesia y asciende hasta otro sitio, justo debajo de la entrada principal. Desde este punto de llegada se abre una vista a la planta simple y abierta de la iglesia, con sus complejas y fuertes superficies pero con una fácil continuidad desde la nave al santuario, desde el público al sacerdote. Dieste ya proponía aquí una relación directa, antes de que ésta fuera proclamada por el Segundo Concilio Vaticano.


La iglesia completa es una especie de manifiesto construido de las convicciones éticas de Dieste: la respuesta a un encargo modesto, donde el cliente, un empresario que donaría la iglesia a la comunidad, no quería contratar un arquitecto porque lo consideraba innecesario para una población pobre que no sabría apreciar la belleza y el costo extra que ésta suponía. Dieste respondió proyectando un galpón barato, rápido y a la vez, profundamente bello.
