
El estudio de arquitectura de A-cero liderado por Joaquin Torres presenta un nuevo desarrollo para un proyecto de interiorismo, ubicado en las ya conocidas 88 viviendas, una de las urbanizaciones más exclusivas de Madrid, situada en la Finca de Somosaguas, Pozuelo de Alarcón.









El equipo de interiorismo del estudio, ha seleccionado distinas piezas de mobiliario para elaborar este espacio, una de las zonas de uso más público de esta vivienda unifamiliar. Para ello, apuestan por el sofá modelo Enzo, conjuntamente con las 2 mesas ovales de la coleección AMBAE de A-cero IN. Lamparas de techo en aluminio blanco que proporcionan al ambiente una luz indirecta, diseñadas por A-cero.

Exteriormente, en la zona del porche que da servicio a la piscina, se diseña un ambiente veraniego en tonos claros, con la colección REST de Vondom diseñada por A-cero y acompañada por los maceteros retroiluminados en blanco, modelo ALMA.


Como elemento decorativo – retroiluminado, se complementan los muros con 2 paneles de Alabastro de A-cero IN en el recibidor.



DISTRIBUCIÓN PLANTA BAJA

DISTRIBUCIÓN PLANTA ALTA

MOBILIARIO SALÓN
MESA DE CENTRO I

MESA DE CENTRO II

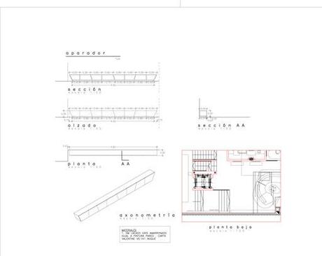
APARADOR

PEDESTALES

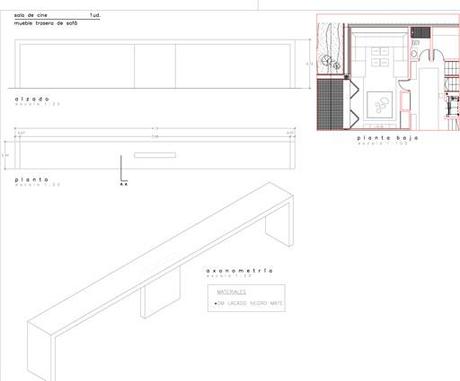
CONSOLA TRASERA SOFA

APARADOR COMEDOR

MESA DE COMEDOR

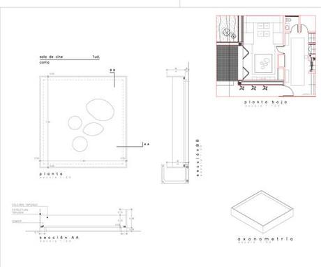
SALA DE CINE
MUEBLE PARA ALOJAR LOS DISPOSITIVOS ELECTRÓNICOS

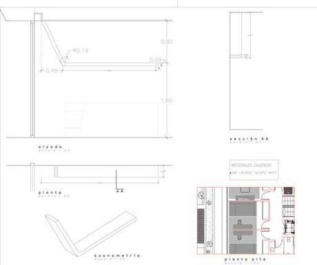
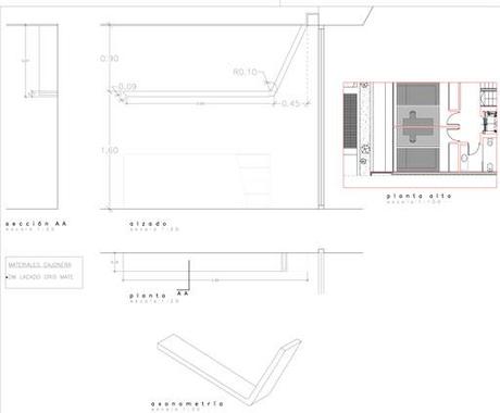
CAMA EN SALA DE CINE

MESA Y POUFS

MESA DE CENTRO

DORMITORIO PRINCIPAL
MESA DE NOCHE

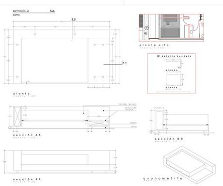
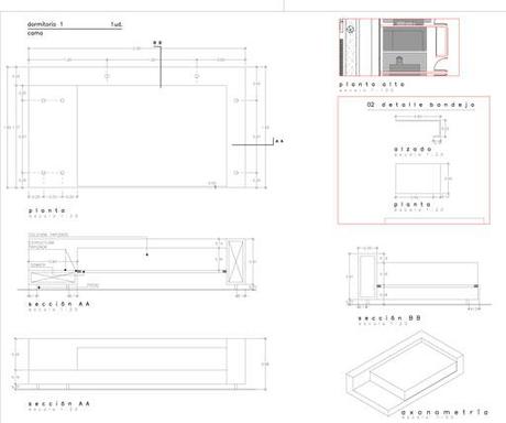
CAMA

BALDA

CAMA

CABECERO

LIBRERIA – MESA

DORMITORIO INFANTIL
CAMA

MESA DE NOCHE Y CÓMODA

DORMITORIO SECUNDARIO
ESCRITORIO

BALDA

