
Indagar los proyectos de Diller y Scofidio implica sumergirse en una práctica que no se encarna en un determinado lenguaje. La obra de Diller Scofidio representa una actividad no discursiva que explora la arquitectura como un hábito físico y psíquico. Su actividad se circunscribe a una búsqueda consiente de experiencias adquiridas y expresadas en un diseño que todavía no ha sido domesticado y simbolizado en el lenguaje (Certeau, 1980,125).
Para Teyssot, "las operaciones teorizadas por estos profesionales no se aplican a discursos y lógicas, sino a regiones donde no quedan discursos: a esos vastos terrenos plagados de textos e imágenes que atraviesan la sociedad1". Diller Scofidio revelan pocos signos de un enfoque hiperanalítico hacia la arquitectura, pero exhiben una renovada y siempre vigente fantasía creativa y una inquieta voluntad de correr de un lado a otro a través de los límites disciplinarios (Hawthorne 2011). Sus obras exploran diferentes percepciones del campo visual a través de determinados montajes escenográficos.
Montaner incluye el trabajo de Diller Scofidio en el grupo de arquitectos preocupados por las experiencias sensoriales, al expresar que "en esta interpretación de los últimos 25 años una de las más grandes novedades y aportaciones en la arquitectura ha sido la paulatina importancia otorgada a los sentidos, a la percepción y a la experiencia humana. (Montaner, 2015, 52)"
En DS+R el sentido de percepción y experiencia está presente en la idea de intencionalidad, esa gestación necesaria para superar el moderno dualismo interior - realidad psíquica / exterior - realidad física (Waldenfels, 2017, 414). En este sentido, el eje compositivo es determinado por los estímulos que produce la percepción sensorial del espacio. Por lo tanto, el pensamiento de diseño aplica un método de valores cambiantes gobernados por la experimentación.
"La arquitectura entra típicamente en un papel de complicidad, para sostener las convenciones culturales. Sin embargo, la arquitectura puede ser puesta en el papel de interrogador. Dadas las reconfiguraciones tecnológicas y políticas del cuerpo contemporáneo, las convenciones espaciales pueden ser cuestionadas por la arquitectura. La arquitectura puede ser utilizada como una especie de instrumento quirúrgico para operar sobre sí misma (en pequeños incrementos)2"
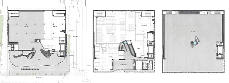
El museo BroadEn el proyecto para el museo de la Broad Foundation de Los Ángeles, DS+R ratifican esa manera de concebir su arquitectura. Sin embargo, para alcanzar ese resultado, deben enfrentar dos grandes desafíos. Por un lado, incorporar un programa que supera varias veces la superficie de la parcela, pero que, además, requiere grandes áreas cerradas para ser utilizadas como depósito del material expositivo. Por el otro, concretar un diseño que se integre a una ciudad donde cada edificio está pensado con un profundo sentido de individualidad, dentro de un área urbana donde la cercanía a un inasible edifico de Gehry no hace más que ratificar este concepto.
El primer obstáculo fue resuelto satisfactoriamente mediante una sagaz resolución del objeto arquitectónico. DS+R atacan de raíz el carácter confrontante de las dos áreas más importantes del programa: las que definen el recorrido público de las salas de exposición y los espacios cerrados para el almacenamiento de las obras de arte. Asumen esa dicotomía como la herramienta propulsora de la idea de proyecto.
El edificio se resume a una caja maciza y opaca que se implanta en el centro de la parcela para albergar las funciones de depósito, y una envolvente sobrepuesta, liviana y permeable, donde trascurre la actividad pública. De ese modo, todo el programa queda establecido en la conjunción de esas dos entidades. Para establecer la unidad compositiva DS+R exploran diferentes percepciones del campo visual a través de determinados montajes escenográficos, mediando un criterio que aglutina la transparencia sobre la opacidad.

La caja central -denominada "la bóveda"- es un volumen macizo donde se almacenan las diferentes colecciones existentes en el museo. Para permitir una integración funcional entre las áreas expositivas y las de almacenamiento, el volumen fue horadado en determinados sectores para dar lugar al vestíbulo de acceso y las circulaciones verticales.
El inicio de la experiencia vivencial del museo se produce en la escalera mecánica que serpentea por el interior de la bóveda. Al pie de la escalera, la luz que atraviesa la envolvente se revela como un punto focal, pero a medida que se asciende se revela con mayor intensidad, propiciando una sensación de movimiento hacia la alborada, porque lo que comienza como un punto de brillo se revela como la galería bañada por la luz que penetra a través del techo (Headthcote 2016). En su recorrido, la escalera ofrece descansos donde se pueden ver las diferentes colecciones almacenadas en los depósitos. El destino final es la terraza de exposiciones, por lo tanto, la parte superior de la caja opaca actúa como solado del espacio de exposiciones más importante del museo.
La galería superior es un punto destacado del diseño. Debido al recorrido escénico que se transita para llegar y la amplitud de la superficie libre tamizada por la luz filtrada, el espacio adquiere una cualidad empírea. Un amplio espacio libre, de luz neutra, donde exhibir la colección de arte. En esta planta, DS+R, recuperan el espacio genérico de la modernidad, es decir,
"el espacio neutro diáfano, distribuido como planta libre y equipotencialmente suministrado por redes energéticas; la extensión horizontal o vertical extendida sin más cualidades iniciales que las de su optimización técnica reaparece como tema en el que producir intensidades destinadas a polarizar agrupamientos y singularizar los acontecimientos de forma menos determinista, otorgando al usuario grados de libertad antes desconocidos3"

Los espacios de circulación pública y las áreas de exposición abierta se desarrollan debajo del "velo", a los lados y por encima del volumen opaco. La trama estructural ratifica la alegoría al "velo" que proclaman los autores; la envolvente calada tamiza la luz del día para componer un espacio poético. El velo es en realidad una envolvente porosa de hormigón estructural prefabricado, ensamblado in situ, que establece el limite exterior del edificio y encierra el volumen macizo del depósito. Al ser autoportante, permite un espacio expositivo libre de columnas. Los elementos de la trama calada están dispuestos en ángulos que impiden el ingreso de luz solar directa, de modo que proporciona al espacio expositivo una luz natural filtrada ideal para el museo.
DS+R ponen en práctica su estrategia en el sentido que describe Dorfman, aislando al individuo para delimitarlo a un lugar limpio4. Una galería con 4.000 metros cuadrados de planta libre.
En el nivel de calle, la envolvente sólo se abre en las esquinas formando pórticos de acceso hacia el vestíbulo. El único elemento del museo que se exhibe al exterior mediante un hueco generado en la trama es la sala de exposiciones. De este modo, el vínculo del museo con la ciudad repite la estratagema de los demás edificios de la zona: un diseño encerrado en sí mismo que a nivel peatonal no ofrece una relación franca con la ciudad.
"El problema se hace evidente en el lugar donde toca el pavimento. La cuidadosa composición de la fachada se desprende de la cáscara interior acristalada a lo largo de la fachada de la Grand Avenue para crear una mezquina - aunque fresca y sombreada - arcada, un lugar para hacer cola cuando está ocupada o simplemente para pasar el rato5".
Si bien este diseño no responde a la "lógica" del lugar, es decir, a edificios que validan su individualidad urbana mediando una imagen de capitalismo portentoso, la malla tramada en el nivel de calle impone una barrera difícil de franquear. La paradoja es que el Broad es un excelente museo en un elaborado caparazón que no hace avanzar a la ciudad en absoluto (Headthcote 2016).
En una entrevista, Diller expresa: "nuestras ciudades están cada vez más privatizadas. Los promotores las están engullendo. Depende de los arquitectos estar muy atentos6". Si entendemos por "privatizadas" la poca capacidad de los edificios para integrase activamente a una trama de espacios urbanos, el diseño del museo valida su acertado diagnóstico.

En The Broad, DS+R resuelven las necesidades programáticas con destreza técnica. Incorporan la voluminosa masa de los depósitos al itinerario del museo y responden con sensibilidad inusual para definir los espacios expositivos. Merrick entiende el diseño como una "arquitectura de partes" que es empíricamente inusual, aunque resalta su valor sensitivo, porque entiende que "Una descripción "correcta" de su forma o estructura no da ninguna idea de lo que realmente te confronta y absorbe. La forma en que el edificio funciona en la imaginación es más significativa7"
Las pequeñas oquedades de la envolvente cualifican los efectos narrativos de la arquitectura, mediando una matriz visual que revela imágenes salpicadas del volumen adusto que contiene debajo. Su carácter neutro no confronta con la naturaleza de un lugar hostigado por edificios poco afectos a una relación asociada. Por el contrario, repite los mismos vicios urbanos que sus colindantes. Encerrado en sí mismo, no ofrece a la ciudad ninguna de las cualidades sustantivas que exhibe en su interior para mejorar el espacio urbano colectivo. Esta condición ¿será una mera coincidencia o en verdad las ciudades promueven consolidarse como una colección de edificios?
Conclusión1 "Las obras de D + S a menudo tratan de la situación de nuestro "cuerpo" en la sociedad. Sus proyectos recorren los diferentes "pliegues" que nuestros cuerpos tejen con el mundo (cuerpo, en el pensamiento griego, carne, en la tradición cristiana). Estos pliegues, son adquiridos por el cuerpo humano a través de varias experiencias físicas y emocionales, vitales y afectivas, psíquicas y sociales. No se trata simplemente de aplicar las teorías fisiológicas, biológicas, psicológicas o incluso antropológicas del cuerpo al ámbito de la arquitectura, con el fin de determinar un entorno que se ajuste a los nuevos estándares de confort y seguridad, una tarea emprendida por algunas metodologías científicas y empíricas en los últimos treinta años" Georges Teyssot. "Mutant Body of Architecture" en Elizabet Diller; Ricardo Scofidio; Georges Teyssot Flesh. The mutant body of architecture: architectural probes (New York : Princeton Architectural Press, 1994), 9.
2 D+S, "Keynote Address" National Technology Conference, Phoenix, Ariz., 29 January, 1993.
©Marcelo Gardinetti3 Jacobo García German, "Estrategias operativas en arquitectura" (Buenos Aires, Nobuko, 2012), 2018
4 La estrategia es un acto de fuerza resultante de un cálculo, que aísla al individuo de su entorno y lo delimita en un lugar declarado como "limpio". Este lugar puede ser el cuerpo, la casa, el trabajo, la nación, etc. Sólo sobre la base de este lugar apropiado se establecen las distinciones entre el interior y el exterior, el yo y el otro, distinciones que son necesarias para los innumerables actos de separación de los que está compuesta la sociedad moderna, tecnocrática y racional. Eran Dorfman, "Michel de Certeau et l'écriture duquotidien" Tetrade #1 (2013), 72
5 Edwin Headthcote, Broad Museum in Los Angeles, USA, by Diller Scofidio + Renfro, Architectura Review, www.architectural-review.com January 16, 2016
6 Liz Diller "Rowan Moore Interview" The Guardian 26-01-2019
7 Jay Merrick "The Broad de Diller Scofidio + Renfro" www.architectsjournal.co.uk 19-10-2015
De Certeau, Michel "L'invention du quotidien, I: Arts de faire" Paris: U.G.E., 1980
Foster, Hal, "El complejo arte -arquitectura" Madrid: Turner, 2013
Hawthorne, Christopher, "Critic's notebook: Broad museum design pointed in the right direction" Los Angeles Times Architectural Critic (Jan. 6. 2011) www.latimes.com
Headthcote, Edwin Broad Museum in Los Angeles, USA, by Diller Scofidio + Renfro, Architectura Review, www.architectural-review.com January 16, 2016
Husserl, Edmund, "Meditaciones cartesianas" Presas, M. (trad.), Madrid: Ediciones Paulinas, 1979
Montaner, Joseph Maria, "La condición contemporánea de la arquitectura" Barcelona: Gustavo Gilli, 2015
Moras, Antonis, "Meta(re)presentations" Archi-doct Vol. 7 (2) (2020)
Teyssot, Georges, "Mutant Body of Architecture" en Elizabet Diller; Ricardo Scofidio; Georges Teyssot Flesh. The mutant body of architecture: architectural probes. New York : Princeton Architectural Press, 1994
Waldenfels, Bernhard, "Fenomenología de la experiencia en Edmund Husserl", Areté, Revista de filosofía, Vol. XXIX, N° 2, (2017)
Memoria descriptiva de los autores
"The Broad es un nuevo museo de arte contemporáneo fundado por los filántropos Eli y Edythe Broad en Grand Avenue, el centro de Los Ángeles, inaugurado en septiembre de 2015. El museo ofrece entrada gratuita y general. Alberga 2.000 obras de arte de la colección Broad, que se encuentra entre las posesiones más destacadas del arte contemporáneo y de posguerra en todo el mundo, y ha lanzado un programa activo de exposiciones temporales rotativas y participación innovadora de la audiencia. La construcción de 11.150 metros cuadrados se distribuye en dos plantas de galería y es la sede de la biblioteca mundial de préstamos de The Broad Art Foundation, que ha prestado activamente obras de colección a museos de todo el mundo desde 1984. En su año inaugural, The Broad atrajo el triple del número de sus visitantes proyectados, y desde su apertura, ha recibido más de 1.
Llamado "el velo y la bóveda", el diseño fusiona los dos programas clave del edificio: el espacio de exposición pública y el almacenamiento que preserva las extensas actividades crediticias de The Broad Art Foundation. En lugar de relegar el almacenamiento a un estado secundario, "la bóveda" desempeña un papel clave en la la experiencia del museo, desde la entrada hasta la salida. Su pesada masa opaca siempre está a la vista, flotando a medio camino en el edificio. Su parte inferior tallada da forma al vestíbulo y a las rutas de circulación pública. La parte superior constituye el piso de las galerías del tercer nivel. La bóveda está envuelta por el "velo", una estructura exterior porosa, similar a un panal de abejas, que se extiende a través del bloque sobre la galería del tercer piso y proporciona luz natural filtrada. El "velo" se levanta en las esquinas, dando la bienvenida a los visitantes al vestíbulo y los locales de venta. Luego, el público se dirige hacia arriba mediante una escalera mecánica que produce un túnel a través de la bóveda. El espacio de galería sin columnas bañado por la luz filtrada alcanza los 4.000 metros cuadrdados. La galería tiene techos de 7 metros de alto y el techo está soportado por vigas de acero de 2 metros de alma. Los visitantes salen del tercer piso a través de una escalera central que serpentea a través de la bóveda y deja ver destellos de las vastas propiedades de la colección.
The Broad recibió la certificación LEED Gold. Cuneta con sus estaciones de carga para automóviles eléctricos, lugar para bicicletas, desagües pluviales dirigidos a jardines a nivel de calle, accesorios de plomería de alta eficiencia que ayudan a reducir el uso de agua en un 40 por ciento y su fácil acceso al transporte público, incluida la adyacencia al nuevo Metro Regional en la esquina de 2nd y Hope Streets (apertura anticipada: 2020), The Broad pretende estar en el nivel superior de museos eco conscientes y eficientes. Los visitantes de Broad reflejaron una diversidad sin precedentes para un museo de arte, un público más joven y con mayor diversidad étnica que el promedio nacional, superando las expectativas del cliente. Reflejan la diversidad del sur de California y el dinamismo del arte contemporáneo. La edad promedio de los visitantes es de 33 años, en comparación con la edad promedio de 45 años del museo nacional de arte; y el porcentaje de visitantes étnicamente diverso es casi tres veces mayor que en otros museos de arte de todo el país.
The Broad también sigue atrayendo a una gran audiencia familiar, con casi el 80 por ciento de los visitantes que dicen tener muy poco o un modesto conocimiento de arte contemporáneo. Desde que The Broad abrió, la experiencia urbana a lo largo de Grand Avenue ha prosperado. El tráfico peatonal aumentó visiblemente, y la vida en la calle se ha expandido exponencialmente con locales móviles de comida, músicos callejeros que aparecen a diario y los restaurantes del área que extienden sus horarios de atenciòn. Esto ha sido un gran beneficio para la comunidad local ubicada alrededor del museo." Diller Scofidio + Renfro
Fotografías: ©Iwan Waan
TECNNE | Arquitectura + contextos
