
El estudio A-cero presenta un proyecto de garaje independiente diseñado para una villa proyectada por el estudio en Oriente Medio. Esta edificación independiente cuenta con una superficie de 215m2.
CROQUIS

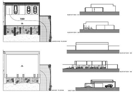
ALZADOS/PLANTAS
El garaje se planea en un único nivel de 215m2 con capacidad para 5 vehículos y acceso rodado exterior.

VISTAS EXTERIOR

El diseño del garaje sigue la misma estética de la fachada de la vivienda donde se ubica, que sigue formas ortogonales donde las líneas y ángulos rectos son protagonistas.

De la misma manera que en la edificación principal, los acabados de fachada son el mármol travertino y el vidrio negro, para seguir una continuidad con la arquitectura de la villa.

VISTAS INTERIOR
El interior sigue un diseño minimalista en consonancia con la fachada, compartiendo el mismo contraste de tonalidades en los acabados.

La iluminación se resuelve mediante un foseado que permite la enrada de luz natural y tiras de luz led que recorren la pared siguiendo la curva hacia el suelo.

