
Hoy el estudio de arquitectura A-cero, dirigido por Joaquín Torres y Rafael Llamazares, presenta una serie de propuestas para los cuartos de baño y aseos de la vivienda diseñada por A-cero en la la Costa Este de Estados Unidos, con una superficie de 657,08 m2, distribuido en dos niveles, planta baja y planta primera.
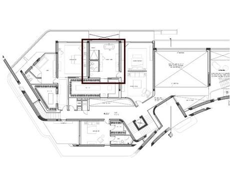
CUARTO DE BAÑO DORMITORIO PRINCIPAL
Situado en planta alta encontramos un dormitorio principal con un cuarto de baño de 35 m2.

OPCIÓN 1
Esta opción presenta unos muros de mármol travertino con un acabado liso pulido, donde encontramos Lavabo Asmara en madera marrón, bajo el que encontramos un mueble tallado en una pieza única de piedra natural que contiene cajones automáticos.

Tras el lavabo se ha instalado un espejo vertical que recorre el muro de suelo a techo.

El espacio incluye una bañera realizada en piedra natural y un espacio de ducha con un acabado en piedra más oscura.

OPCIÓN 2
En esta opción se plantea un acabado de pared Sequoia sobre el que reposa un espejo de grandes dimensiones, logrando transmitir mayor profundidad a la estancia.

OPCIÓN 3
Esta última propuesta para el cuarto de baño del dormitorio principal contempla un acabado más oscuro frente al lavabo Calacatta Massa, esculpido en una sola pieza siguiendo un diseño geométrico.

El resto de muros comparten una claridad de acabados, que potencian la luz que entra por los grandes paños de vidrio que ofrecen unas magníficas vistas a la bahía.


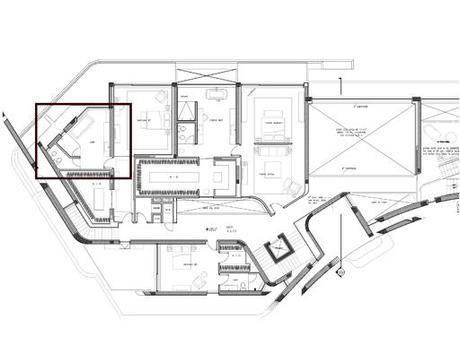
CUARTO DE BAÑO DORMITORIO INVITADOS
En planta baja encontramos una combinación de zonas comunes, de servicio y de invitados, con dormitorio en suite de 23 m2 con vestidor.

OPCIÓN 1
Para el cuarto de baño de invitados primero se plantea un acabado negro de los muros en piedra natural. Para los muebles, lavabo y bañera se combinan materiales nobles como la madera y la piedra.


El aseo y la ducha son espacios independientes protegidos por paneles de traslúcidos que ocultan el interior.

OPCIÓN 2
Esta opción juega con un contraste de colores siguiendo una combinación inversa a la mostrada anteriormente.

Se utilizan colores claros en los muros de piedra y en este caso el mobiliario comparte un acabado más oscuro en madera y piedra negra.


