Revista Arquitectura

Distribución e Instalaciones Jean-Jacques Rousseau

Por Luiscercos
Por Ramiro Mínguez. Ingeniero de Edificación y Arquitecto Técnico.
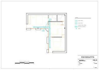
Distribución e Instalaciones Jean-Jacques Rousseau
Distribución e Instalaciones Jean-Jacques Rousseau
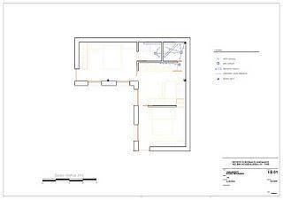
Distribución e Instalaciones Jean-Jacques Rousseau
Distribución e Instalaciones Jean-Jacques Rousseau
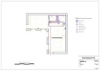
Distribución e Instalaciones Jean-Jacques Rousseau
Distribución e Instalaciones Jean-Jacques Rousseau
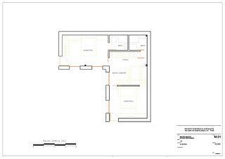
Distribución e Instalaciones Jean-Jacques Rousseau

Volver a la Portada de Logo Paperblog