
Textos:De la redacción de Croquizar. Decir mucho, en pocas líneasEn base a fuentes libres citadas en el artículo
Las Bodegas Dominus se ubican al norte de San Francisco. Saliendo de la ciudad por la ruta 101, tomar la 37, hacia Napa, unos 11 kilómetros luego de esta ciudad. La obra se encuentra en las cercanías de Yountville. Christian Moueix, famoso viticultor bordelés, descubrió las excepcionales posibilidades de esta región para el cultivo de la vid en comparación con otras. Ya a principios de siglo se producían excelentes vinos en la zona. Hallazgos prehistóricos de obsidiana han probado que allí existió un asentamiento indígena. Después de trabajar durante diez años en estas tierras, Moueix consiguió elaborar un espléndido vino, el Dominus, que atrajo tanta atención internacional que decidió construir unas bodegas para su elaboración.
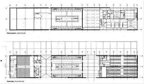
El edificio se divide en tres unidades funcionales: la sala de cisternas, la cámara de barricas y el almacén, todas vinculadas a las distintas fases de la elaboración del vino. El edificio tiene una disposición lineal, de aproximadamente 110 metros de largo por 25 de ancho, con un puente en el eje principal la ruta principal de la bodega. La construcción se sitúa en el centro de los viñedos. Las viñas de California alcanzan una altura de dos metros de modo que el edificio se integra en la textura lineal y geométrica de los viñedos. Se han dividido las unidades funcionales de la planta baja con galerías cubiertas. La ruta principal de los viñedos atraviesa la más grande de éstas. Este amplio espacio cubierto, sirve como zona de recepción, abierta y pública.
Los visitantes son recibidos en la sala de degustación para probar el vino. El clima en Napa Valley, es extremo: muy cálido durante el día y muy frío en la noche. Se pretendió diseñar una estructura capaz de sacar partido de estas condiciones. En los Estados Unidos el aire acondicionado se instala automáticamente para mantener estables las temperaturas. Las estrategias arquitectónicas relativas a la regulación de la temperatura haciendo uso de los muros, son desconocidos. Delante de la fachada se utilizan gaviones, recurso utilizado en la ingeniería hidráulica, que adosados a los muros forman la masa inerte que aísla las salas y las protege del calor y el frío.
El relleno de los gaviones es más o menos denso según la necesidad. Según los autores, se podría describir el uso de los gaviones como una especie de cestería de piedra con diversos grados de transparencia, algo más cercano a una piel que a la construcción tradicional.
Programa: Bodega / Cisterna / Depósito Ubicación: Yountville – EE.UU. Autores: Herzog & de Meuron Fecha: 1996Fotografías

















Geolocalización
