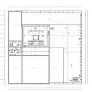
Generado a través de una estrategia concisa y resumida, el proyecto indaga la relación de dos programas funcionales contenidos en una misma estructura edilicia. La respuesta es un edificio de forma cúbica, compacto y determinado, formulado a partir de dos materialidades diferenciadas, que abrevian la división de funciones de cada uno de los programas.

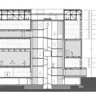
El cuerpo compacto del centro de las artes se compone de una serie de planos y volúmenes amalgamados, que se disponen mediante un orden predeterminado para conformar espacios de diferentes características. Los muros opacos de textura rustica contienen los espacios donde se desarrollan las actividades del conservatorio de danzas. Apelando al contraste, una serie de planos traslúcidos y/o transparentes montados en una estructura liviana configuran los espacios donde se alojan las actividades del museo.






“Unir dos programas diferentes (conservatorio de danza y museo) en una única entidad nos permitía explorar la relación entre dos estructuras ajenas entre sí en todos sus aspectos: organización, percepción, expresión, función, construcción. Con ambos factores podíamos sumar, restar, dividir; elegimos multiplicar. Como siameses unidos por la espalda, nuestros edificios no se conocen entre sí, pero son el mismo cuerpo; la extraña forma de hormigón contiene en su interior el conservatorio, mientras que su superficie exterior define el espacio del museo, lo que queda entre la forma y el límite.” (1)






La variación cuidada de los elementos que construyen el centro de las artes concede espacios netamente diferenciados. Esta característica no es sólo de percepción táctil, los efectos de luz y sombras que se generan en el interior del edificio por esa diversidad material acentúa la segmentación y confirma de forma implícita la división funcional.
©Marcelo Gardinetti, 2018
Fotografías: ©Héctor Santos-Diez
Artículo relacionado: Porosidad y movimiento
TECNNE | Arquitectura + contextos












Notas:
- aceboXalonso Studio, Memoria descriptiva.
