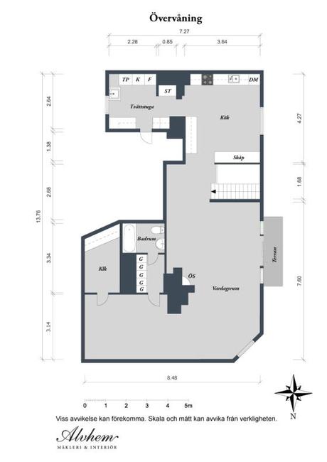
La mayoría de los dúplex alojan en su planta inferior las zonas comunes como la cocina, el salón y el comedor y en la superior algún dormitorio y la terraza. No es que sea una distribución estándar pero si habitual, al contrario que la este dúplex sueco, que en la planta de abajo hay un gran hall y un pequeño dormitorio y aseo, para alojar el resto de las habitaciones en un gran espacio diáfano en la planta de arriba.
Conociéndome, si yo viviera en este ático no pisaría prácticamente la planta de abajo, lo mejor de la vivienda está arriba y eso incluye la salida al balcón, que aunque no es muy grande, es otra de las joyas de la casa. Pintado absolutamente en blanco de suelo a techo, excepto el llamativo estampado del papel de pared de walk in closet, el color lo ponen a cuentagotas alguna pieza de mobiliario y los accesorios. Destaca la bonita combinación de cojines de diferentes estampados sobre el sofá. ¡Feliz jueves!




























Vía: Alvhem
