Este edificio es un nuevo laboratorio de investigación química para un mundo material que conduce una corporación de desarrollo. Está en un gran sitio en una zona industrial cerca de la bahía de Tokio. Respondimos a la solicitud de “eficiencia de la investigación” mediante el uso de salas experimentales flexibles, donde los investigadores pueden ajustar su espacio de investigación de acuerdo a sus necesidades.

Para las solicitudes de “alta seguridad” y “comodidad” respondimos con oficinas de alto confort y áreas de descanso a lo largo de todo el edificio. Respondimos a la solicitud de “simbolismo” con una arquitectura simbólica que ayuda a promover las capacidades de la compañía para el mundo.
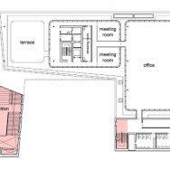
En primer lugar, hemos alineado horizontalmente los ambientes: laboratorios, una oficina, habitaciones, un auditorio y una sala de recepción a lo largo de un pasillo común de reuniones. Ubicamos la entrada de invitados y la entrada investigadores en cada extremo.






Mediante la adopción de un plan con pasillo común, los clientes pueden optar libremente por puertas y mover las particiones de las salas experimentales de acuerdo a sus necesidades. La puerta de seguridad es fácilmente ajustable debido a la forma lineal del plan y la separación las entradas de los huéspedes y del investigador.
A continuación, hemos transformado este plan lineal en tres dimensiones. La oficina y las salas de reuniones tienen la más alta confidencialidad, por lo que fueron separadas del plan lineal, que continúa en espiral alrededor de las oficinas y salas de reuniones. Como resultado, la oficina y las salas de reuniones están al margen de otras habitaciones.






Verticalmente estas habitaciones se encuentran en el centro de la espiral. Por lo tanto el acceso a las salas experimentales en los pisos superior e inferior es fácil. Además, aunque estas habitaciones tienen alta seguridad, las paredes son transparentes, dando un ambiente confortable al aire libre.
Masahiro Kinoshita / KINO, 2013©
Fotografías: ©Hiroyuki Hirai y Daici Ano
Artículo relacionado: Coronando la ladera
TECNNE | Arquitectura + contextos









Escrito en: Arquitectura
Autor: Marcelo Gardinetti
Fotografía: Hiroyuki Hirai y Daici Ano
Cite: Eficiencia de la investigación, Tecnne
Enlace corto: http://tecnne.com/?p=16856
Tags: arquitectura, Centro de investigaciones médicas de la Universidad de California, Daici Ano, Eficiencia de la investigación, Hiroyuki Hirai, kino, KINO Arquitectos, laboratorio de investigacion, Masahiro Kinoshita, Spiralab
Los artículos de TECNNE se encuentran bajo la licencia Creative Comons | The articles of TECNNE are found under license Creative Comons
Deja un comentario
Clic para cancelar respuesta.Nombre (requerido)
Correo electrónico (no será publicado) (requerido)
Web
