
Hoy nos hemos querido acercar un poquito más a vosotros mostrándoos nuestros estudios de Madrid y La Coruña. Las oficinas donde diariamente creamos y desarrollamos prácticamente todos los proyectos gracias a la labor de un equipo de más de 50 profesionales liderados por Joaquín Torres y su socio Rafael Llamazares.


A-cero fue fundado en 1.996 en La Coruña. Joaquín y Rafa, amigos y compañeros desde la Universidad, decidieron crear su propia empresa y emprender una aventura que se mantiene hasta hoy.
Para ello, eligieron un local situado en una céntrica calle de la ciudad gallega. Un bajo utilizado anteriormente como taller de coches que fue transformado en el estudio actual.

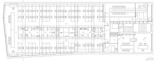
El estudio consta de una superficie de 363,47m2 con forma rectangular. Desde la entrada, se encuentra la secretaria que comunica con un distribuidor con acceso a una sala de juntas, otra de reuniones y dos despachos.
PLANTA BAJA



Más hacia el interior se localiza el área de trabajo donde se hallan dispuestos los escritorios simétricamente y de forma paralela hasta el extremo opuesto del local. Una franja central divide esta zona en dos y alberga las siguientes estancias: almacén de archivos y materiales, sala de maquetas, fotocopiadora, corte y montaje de planos y paneles, baños y cocina.



Se ha cuidado especialmente la elección de las piezas ornamentales, materiales, texturas, acabados y los colores predominando el blanco, el gris y el negro en suelos, paredes y techos convirtiendo el espacio en un todo dotado de un corporativismo unificado.


Mañana os mostraremos el estudio de A-cero en Madrid abierto años después debido a los numerosos proyectos encargados en la capital.

