
Textos:De la redacción de Croquizar. Decir mucho, en pocas líneasEn base a fuentes libres citadas en el artículo
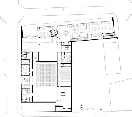
En la pequeña localidad de Santa Margarita de Montbuy, en la comarca de Anoia, se encuentra el Centro cultural Mont-Àgora. El edificio, resultado de un concurso ganado en 2008 por el estudio catalán de Pere Puig, consiste en un volumen que alberga en su interior una biblioteca, una sala de conferencias, un auditorio y aulas de formación.
Concebido como un gran pórtico, el frente norte presenta superficies acristaladas retranqueadas con respecto a la línea de fachada, y un porche que da acceso al vestíbulo de doble altura. La construcción está envuelta con paneles de hormigón blanco en cuyo acabado está texturizado con letras de diferentes alfabetos, en bajo relieve. Celosías con láminas de vivos colores protegen los interiores de la radicación solar.








