El antecedente inmediato al proyecto de la Maison La Roche Jeanneret resultó una frustrada operación inmobiliaria organizada por Le Corbusier, quien pretendía adquirir varios lotes de una calle sin salida para realizar un conjunto de viviendas alineadas. De este intento, sobrevive un terreno en forma de “L” ubicado en la esquina sur, con tres árboles en su interior y dos futuros propietarios a los que Le Corbusier convence para construir sus viviendas en ese sitio.

Una de las propiedades estaba destinada a vivienda permanente de Albert Jeanneret y Lotti Raaf, con quienes Le Corbusier había compartido un departamento de la Rue Jacob cuando decidió instalarse en Paris. La otra casa estaba destinada a Raoul La Roche, un banquero apasionado de la pintura moderna y fundamentalmente por la estética purista. La Roche posee una colección de pinturas de Picasso, Braque, Gris, Léger, y también de Le Corbusier y Ozenfant. Además colabora financieramente para la publicación de la revista L’Esprit Nouveau. A raíz del crecimiento de su colección pictórica, encomienda a Le Corbusier la construcción de una vivienda donde residir que permita además organizar eventos sociales y poner en valor su colección pictórica.
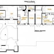
Las viviendas se disponen alineadas en forma paralela a la calle; por delante la casa Jeanneret y en el final la casa La Roche. El volumen que aloja la galería de arte de la casa La Roche ocupa la parte visible desde el inicio de la calle. El diseño expone una planta ajustada a las dimensiones del terreno pero la volumetría, a diferencia de los ensayos compactos anteriores, se consolida como una composición de elementos de diferente forma y generación.






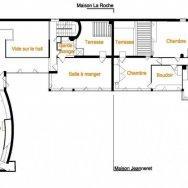
La casa Jeanneret se resuelve en el interior de la caja. El programa desarrollado por Raaf era típico de una vivienda familiar: sala de estar, comedor, dormitorios y servicios, más una cochera y una habitación de servicio. Le Corbusier dispone el programa siguiendo un orden inverso al habitual. La planta baja está destinada a los locales de servicio y la cochera. Un pequeño hall ubicado en el extremo derecho contiene la escalera que conduce a las áreas habitables. En el primer piso se desarrolla el área de dormitorios y sus servicios. Los locales destinados a las áreas sociales se encuentran en el segundo piso, en una enorme planta libre que disfruta las mejores vistas y un buen asoleamiento. Por encima se desarrolla la terraza jardín, vinculada a las áreas sociales por una escalera. Sobre el eje medianero se abre un patio para permitir la iluminación de las habitaciones interiores y preservar algunas especies vegetales.
El programa de la casa La Roche se estructura en dos áreas diferenciadas, una privada donde se desarrolla la vivienda y otra pública para la galería de arte y la biblioteca. Esta disociación constituye una respuesta eficaz a las necesidades del cliente.
Se accede a un vestíbulo que se desarrolla en triple altura, donde se formulan múltiples interacciones espaciales, con circulaciones que cruzan y circundan el espacio y balcones que penetran en voladizo. Los espacios de la casa se encuentran enlazados en los tres niveles mediante una secuencia que permite su exploración gradual. A diferencia de las viviendas tradicionales de esa época que imponen una escalera central en el hall de entrada, Le Corbusier compone dos escaleras pequeñas y poco visibles a cada lado, liberando el espacio a la luz y las vistas. Un puente en el primer piso ubicado detrás del ventanal reduce la altura sobre el punto de acceso y permite el vínculo entre la casa y el estudio.






La parte privada, situada a la derecha, contiene un apartamento para el casero y una cocina en planta baja, un comedor y un office en el primer piso, y la habitación de Raoul La Roche en el segundo, precedida de un vestidor y un baño. La continuidad de la escalera permite acceder a la cubierta-jardín. Uno de los lados del comedor es poseedor de una ventana corrida que permite un amplio campo visual y una iluminación natural abundante y uniforme. El tratamiento monocromático de muros y cielorraso en tono siena amplía el efecto visual de la abertura. Este suceso se repite en el dormitorio, tratado con tonos más claros que el comedor.



El área pública se desarrolla de manera perpendicular a la anterior. En planta baja se emplaza la habitación de invitados, en la planta primera la galería de pinturas y en la segunda la biblioteca. La sala de pinturas de la casa La Roche se extiende en el interior de un volumen elevado sobre un pilotis central. Un muro curvo sobre el frente contrasta sombras y figuras para establecer un punto distintivo en la composición. En su interior, el carácter alargado de la sala y los ejercicios de policromía aplicados por Le Corbusier contrastan con la dinámica vertical y la monocromía del vestíbulo y enriquecen el paseo ordenado por el diseño.
Los lados longitudinales de la caja están coronados por una ventana que recorre toda su longitud. En la parte superior del muro recto se desprende un pequeño plano inclinado que evita el ingreso de los rayos solares, distribuyendo la luz de manera uniforme. En el lado opuesto, la curvatura está subyugada por una rampa que aporta una dinámica singular al espacio. Las superficies, concretadas con diferentes colores, permiten estructurar los volúmenes como entidades para favorecen las visuales cambiantes que se generan desde la rampa.






La biblioteca ubicada en el último nivel de la casa domina el vacío del vestíbulo. Tiene una iluminación propicia para la lectura obtenida mediante la combinación de la iluminación cenital y la proveniente de las aberturas laterales.
La fachada es tratada con planos ciegos y transparentes formando una superficie continua, modulada bajo los patrones de trazados reguladores que toman como referencia el número áureo para definir la ubicación y tamaño de los vanos y las salientes de la fachada.

La obra finalizó en 1925, momento que produjo el distanciamiento entre Le Corbusier y Ozenfant después de una discusión sobre como colgar las pinturas en la sala.
En el proyecto La Roche Jeanneret, Le Corbusier expone un nuevo formulario alterando el carácter compacto de sus composiciones, por otro compuesto de volúmenes con diferente generación inscriptos a un proyecto común. En su interior, construye un collage de contrastes formales y cromáticos siguiendo una idea de secuencialidad. En la casa La Roche, la arquitectura se formula mediante en un relato donde espectador y escenario se funden develando sensaciones cambiantes en el transcurso del recorrido.
Marcelo Gardinetti, octubre de 2014©
Fotografías: ©Olivier Martin Gambier – FLC/ADAGP
Artículo relacionado: La inflexión creativa
TECNNE | Arquitectura + contextos



Escrito en: Arquitectura
Autor: Marcelo Gardinetti
Fotografía: Olivier Martin Gambier – FLC/ADAGP
Cite: Marcelo Gardinetti, El proyecto La Roche - Jeanneret; Tecnne
Enlace corto: http://tecnne.com/?p=17536
Tags: albert jeanneret, amadee ozenfant, arquitectura, casa jeanneret, casa la roche jeanneret, Cubismo, El proyecto La Roche - Jeanneret, Le Corbusier, lotti raaf, maison la roche, Marcelo Gardinetti, movimiento moderno, parte 2, picasso, pierre jeanneret, Proceso y desarrollo de la Casa La Roche-Jeanneret, purismo, raoul la roche
Los artículos de TECNNE se encuentran bajo la licencia Creative Comons | The articles of TECNNE are found under license Creative Comons
Deja un comentario
Clic para cancelar respuesta.Nombre (requerido)
Correo electrónico (no será publicado) (requerido)
Web
