
El estudio de arquitectura A-cero, dirigido por Joaquín Torres y Rafael Llamazares, de nuevo presenta la entrega de una vivienda unifamiliar A-cero Tech , modelo Cubic, en el Oeste de la Capital.
CROQUIS

EMPLAZAMIENTO

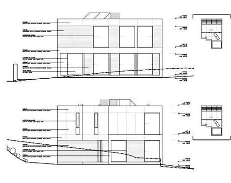
SECCIONES


ALZADOS


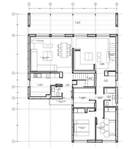
PLANTA BAJA
Esta vivienda A-cero Tech se estructura en 2 niveles, planta baja y planta primera. En la planta baja de 173 m2 encontramos el salón comedor, cocina, aseo, lavadero, dos dormitorios y un cuarto de baño.

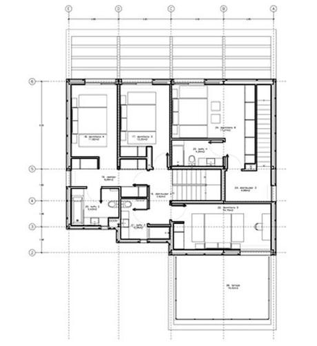
PLANTA ALTA
En planta alta de 100 m2 se plantean otros tres dormitorios, dos cuartos de baño y el dormitorio principal con vestidor y cuarto de baño.

Os mostramos también el proceso de montaje de esta vivienda y las imágenes de entrega:
MONTAJE








VIVIENDA FINALIZADA Y ENTREGADA







Vota el Blog A-cero para los premios Bitácoras 2012

