
El estudio de arquitectura A-cero, dirigido por Joaquín Torres y Rafael Llamazares, presenta la entrega de una nueva vivienda unifamiliar A-cero Tech en Majadahonda, Madrid.
Se trata en este caso de un modelo Basic B2 (modelo descatalogado) con extra de salón a doble altura, concebida como ampliación de una vivienda unifamiliar ya existente.
EMPLAZAMIENTO

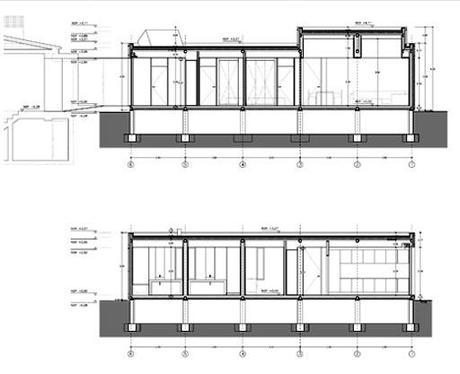
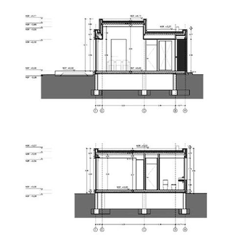
SECCIONES


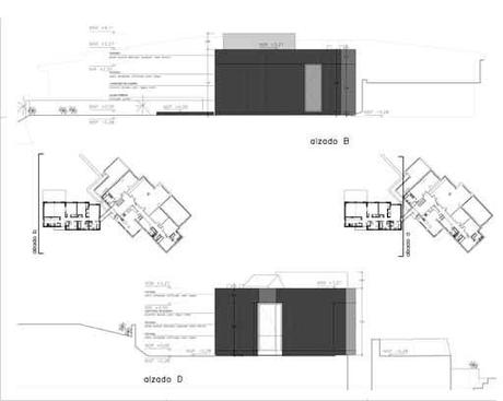
ALZADOS


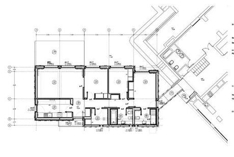
PLANTA BAJA
El total de la ampliación de la vivienda de nueva planta se realiza sobre rasante. Se parte de un módulo que se anexa a la vivienda existente mediante el hall de acceso principal, que será un pabellón de invitados desarrollado completamente en planta baja. Cuenta con estancias principales como el salón , una sala que conecta con la vivienda existente, dos dormitorios, dos cuartos de baño un office complementario y lavadero propio.

En el exterior se proyecta una terraza con acceso desde el salón, así como una piscina.
Os mostramos a continuación el proceso y la vivienda ya terminada
MONTAJE E INSTALACIÓN





VIVIENDA FINALIZADA



ENTREGA DE LA VIVIENDA






Vota el Blog A-cero para los premios Bitácoras 2012

