
Hoy el estudio de arquitectura A-cero, dirigido por Joaquín Torres, presenta el proyecto finalizado de las dos viviendas gemelas A-cero Tech de 157,85 m2 personalizadas, en las islas Baleares.
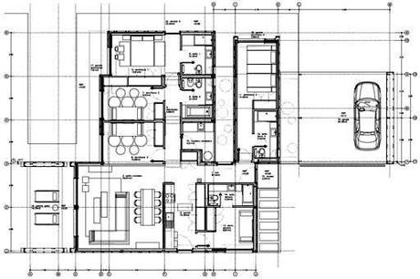
PLANTA
Ambas viviendas, de 157,85 m2 cada una, se distribuyen en una sola planta. Tras cruzar el porche de acceso nos adentramos por un hall hasta la cocina, el salón comedor de 30 m2 con porche, un distribuidor, un dormitorio en suite de 14 m2, dos dormitorios de aproximadamente 14 m2 con cuarto de baño, un cuarto tendedero, y un dormitorio de servicio con cuarto de baño y porche individual. Tres de los dormitorios comparten un porche y en el exterior tambièn nos encontramos una pérgola garaje de 34,33 m2 y dos terrazas de 67 m2 y 33 m2.

VISTA EXTERIOR

Este modelo A-cero Tech ha sido diseñado en exclusiva para un cliente. Inspirado en el modelo Basic, estas viviendas personalizadas están acabadas en paneles de cemento reforzado blanco y vidrio negro.

El aparcamiento en el exterior se ve resguardado por una pérgola cuyo diseño es del mismo modo exclusivo para estas viviendas.

NUEVAS IMÁGENES DE MONTAJE







EXTERIOR




INTERIOR





