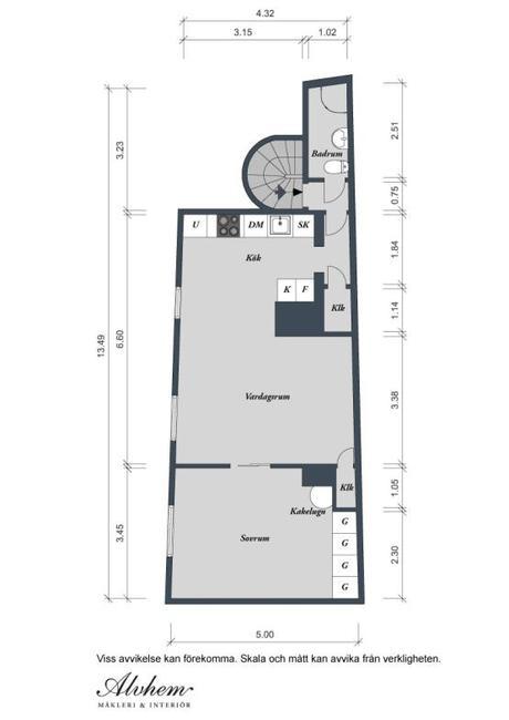
Cuando buscamos nuevo hogar no se nos deben olvidar las posibilidades que pueden ofrecernos las viviendas construidas en antiguos edificios, la mayoría situadas en el centro de las ciudades y con instalaciones completamente renovadas para cumplir los nuevos estándares. Este piso pertenece a un edificio sueco de 1.885 quién lo diría ¿verdad? Una buena reforma, nueva distribución y mobiliario encajan estupendamente con los grandes ventanales y las características del antiguo edificio. A mi me encanta lo bien que queda el estilo nórdico moderno, piezas de diseño incluidas, en este piso antiguo, con sus despensas/armarios escondidos, el suelo ya de ‘cierta edad’, la chimenea semicircular, los altos techos… ¿y a vosotros?
Os recuerdo que seguimos de sorteo toda la semana,animaos a participar podéis ganar un set de dos lámparas de mesa y un cojín gentileza Wit+Wit, tenéis todos los detalles en el post de ayer. ¡Feliz martes!



























Vía: Alvhem
