
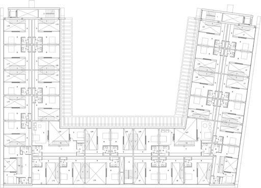
Hoy os presentamos un proyecto destinado a la construcción de una serie de lofts en Madrid. Con ello se pretende dar respuesta a las necesidades del cliente, en cuanto a estancias y superficies. El edificio consta de tres plantas, divididas cada una de ellas en 31 lofts con espacios comunes de distribución, y dos sótanos destinados a garaje.
La superficie total construida es de 2.100m2. Los loft oscilan entre los 40 y 90m2, con terrazas exteriores de 20m2.
ALZADOS

SECCIÓN

PLANTA SÓTANO GIMNASIO

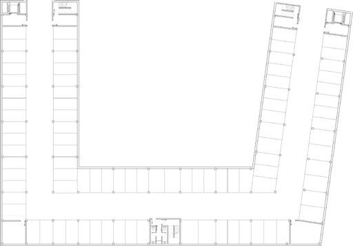
PLANTA SÓTANO

PLANTA BAJA

PLANTA PRIMERA

PLANTA CUBIERTA

Desde la planta baja se tiene acceso a los núcleos de comunicación que conducen a los sótanos y resto de plantas. Éstos se sitúan en los extremos del bloque, existiendo a mayores uno intermedio localizado en el brazo central.

Se ha cuidado el aspecto exterior del mismo, procurando dotar al entorno de una buena calidad ambiental. Se proyecta un elemento continuo de hormigón que, en diferentes piezas, recorre cada uno de los alzados, contribuyendo a la mejora estética del edificio y colaborando en el control solar del interior de los lofts.

Los lofts de planta baja disponen de unas terrazas de uso privado mejorando la calidad espacial de estos, al prolongar el espacio interior hacia el exterior. En los extremos del bloque se sitúan los núcleos de comunicación. Estas fachadas de los extremos poseen un carácter más pesado, y en ellas sólo se abre un hueco en toda la altura de la edificación que recorre el núcleo de escaleras.

El espacio exterior que forma este edificio se trata a modo de plaza con un estanque y zona verde. Los alzados se ordenan a partir de la apertura de la fachadas longitudinales proporcionando así mayor amplitud a los lofts. Estas fachadas se modulan horizontalmente según las diferentes plantas y verticalmente con los huecos practicables y carpinterías que responden a la distribución interior.


Cuidados interiores diseñados con materiales de primera calidad. Juego de luces indirectas, líneas rectas y equilibrio ganando amplitud a la estancia.




