
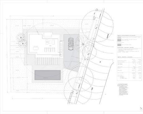
Hoy, el estudio de arquitectura A-cero, quiere mostraros una nueva vivienda A-cero Tech ubicada en las proximidades de la capital. Sobre una parcela de forma trapezoidal y superficie de 724 m2 se levanta esta vivienda unifamiliar de dos plantas + sótano con piscina exterior y con un programa adecuado a las necesidades de la propiedad. Después de mostraros el proceso de montaje os enseñamos por fin la vivienda ya terminada.
EMPLAZAMIENTO

SECCIONES

ALZADOS


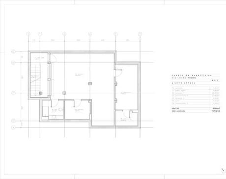
PLANTA SÓTANO
La planta sótano estará destinado al almacenaje y las instalaciones con un patio inglés para introducir la luz natural y disponiendo a su vez de aseo. Cuenta con una superficie de 107’72 m2.

PLANTA BAJA
En planta baja, se realiza una distribución que se resuelve con estancias principales para la relación como salón-comedor, cocina, lavadero, un cuarto de baño y un dormitorio. El hall que da acceso a la vivienda, comunica directamente con el salón y el distribuidor permitiendo también el acceso a la cocina. Cuenta con una superficie de 106’47 m2.

PLANTA ALTA
En planta primera tres dormitorios, uno de ellos con vestidor, una zona de estudio y tres cuartos de baño. Cuenta con una superficie de 95’21 m2.

PLANTA CUBIERTA
La planta cubierta se plantea como transitable, y se accede a ella a través de unas escaleras exteriores.

MONTAJE
Ahora os dejamos con la secuencia fotográfica del montaje de la vivienda.












EXTERIOR
Se ha buscado, con la propuesta, el perfecto funcionamiento de la vivienda en relación a las necesidades de la propiedad en un terreno con poca pendiente sobre el que se coloca la vivienda modular y volcando las estancias principales al suroeste y primando la privacidad de éstas sobre los cuartos de baño, lavadero y cocina orientados al noreste.





La vivienda tiene dos zonas claramente diferenciadas; una zona de día (si bien tiene un dormitorio) en planta baja, y una zona de noche en la planta superior. Los dormitorios y el estar – comedor tienen grandes aberturas y, a través de ellas, en el estar-comedor, se da acceso al porche y a la piscina. En el lado opuesto de la casa, nos encontramos con las estancias complementarias, cuartos de baño, lavadero y cocina, con aberturas mínimas y limitando la relación del interior con el exterior. Asimismo, se dispondrá sótano para el almacenaje e instalaciones al que se accede por una escalera situada en la fachada más cercana a la calle.


INTERIOR




La vivienda tiene una superficie total de 309’40 m2, e incluye una piscina exterior de 36 m2.


