
Ayer en el último programa de ‘Las Casas de Torres’, Joaquín nos mostró la Finca las Mercedes, una exclusiva urbanización A-cero Tech, dentro de un entorno natural privilegiado: el Cortijo del Aire en Granada. Esta urbanización cuenta con todo tipo de dotaciones: educativas, sanitarias, sociales y de ocio. Un lugar perfecto para vivir en familia cercano a la naturaleza y a un paso de la ciudad.
Estas viviendas unifamiliares estructuradas en dos niveles (planta baja y planta alta) comprenden una de superficie total de 125 m2, más porches y zona de aparcamiento, con una parcela a partir de 280 m2. En las Mercedes estas viviendas están disponibles a partir de 260.000€.
LOCALIZACIÓN
Situado en la confluencia de los dos mayores ejes de carreteras de toda la provincia (N-323 Y A-92), permite un acceso directo tanto a la capital, como al aeropuerto de Granada. Además esta muy bien comunicado en transporte público con el centro de la capital en Metro y autobús, a través de las 3 líneas regulares diarias y un servicio especial nocturno.

EMPLAZAMIENTO
Ubicada en el Cortijo del Aire, ubicado en el término municipal de Albolote, un entorno único rodeado de naturaleza con vistas a Sierra Nevada y a 5 minutos del núcleo urbano de Granada. Un marco incomparable y un lugar preferencial para construir la casa de tus sueños.

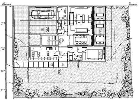
PLANO DE PARCELAS
Las viviendas de Las Mercedes cuentan con el revolucionario sistema de fabricación A-cero Tech, innovador en España, que permite tener el hogar soñado en tan solo 4 meses, con los mayores estándares de calidad del mercado, a un precio muy competitivo.

A continuación os dejamos un video de presentación de la Finca Las Mercedes:
VIVIENDA TIPO 1
ALZADOS

SECCIONES

PLANTA BAJA
Este nivel cuenta con una superficie total construida de 114,28 m2 dividida en un porche de entrada previo al hall de interior, un salón comedor de 28,96 m2 con porche de 16,85 m2, cocina de 9 m2, lavadero, un aseo de cortesía, escalera y trastero. En el exterior encontramos un porche garaje de 28,57 m2 con capacidad para 2 vehículos.

PLANTA PRIMERA
En este nivel se sitúan las estancias privadas de la vivienda. Un distribuidor nos conduce al dormitorio principal en suite de 14,2 m2 y dos dormitorios secundarios de 10,20 m2 y 9,20 m2 que comparten un cuarto de baño.

PLANTA CUBIERTA

VISTAS
Las viviendas de la urbanización Las Mercedes siguen el innovador sistema de A-cero TECH, basado en los principios de la construcción industrializada, unido a la exclusiva calidad arquitectónica y de acabados. Es un sistema que aplica a la construcción los mismos procedimientos de estandarización, modularidad tecnológica, control de calidad y tiempos de ejecución que se emplean en los procesos industriales garantizando un óptimo acabado final debido a la mano de obra cualificada y a la carga de diseño. Todo ello bajo el diseño y garantía del estudio A-cero.

Difiere de la construcción tradicional en el uso preferente de estructuras metálicas, siempre más rigurosas en cuanto a calidad y medidas, más ligeras y adaptables, en substitución de los elementos estructurales de hormigón tradicionales ( más pesados y de ejecución no siempre fiables ). La fachada está formada, según zonas, por: fachada ventilada compuesta de paneles de cemento reforzado con acabado en color blanco, gris o color madera, con subestructura metálica sobre panel modular autoportante.

La cubierta, tanto de la vivienda como del porche, es planta no transpirable. La carpintería exterior se realiza en aluminio y doble acristalamiento con cámara de aire.

El interior de estas viviendas responde a un espacio cálido y amplio con un diseño característico de A-cero, donde la luz natural inunda los ambientes gracias a los grandes ventanales dispuestos en la fachada. La distribución interior se realiza en tabiques de placas de yeso laminadas, con un pavimento en cerámico blanco con rodapié lacado en color de la pared, y carpintería interior de puertas batientes en color blanco.
FOTOGRAFÍAS VIVIENDA PILOTO
Os mostramos a continuación estas imágenes en exclusiva como adelanto del reportaje que pronto os mostraremos






Además os dejamos a continuación el vídeo de Las Casas de Torres donde el propio Joaquín nos muestra la propia urbaniZación Las Mercedes.
Además, os mostramos en este post un SEGUNDO TIPO DE VIVIENDA, estructurada en dos niveles (planta baja y planta alta) que comprende una de superficie total de 125 m2, más porches y zona de aparcamiento, con una parcela a partir de 280 m2. En las Mercedes estas viviendas están disponibles a partir de 260.000€.
PLANTA BAJA
La planta baja cuenta con una superficie total construida de 109m2 (90m2 útiles) repartida en un hall de entrada, escalera, cocina de 13,60m2, dormitorio de 10,5m2, distribuidor, cuarto de baño, salón comedor de 34,5m2, un segundo distribuidor, lavadero y trastero. En el exterior la vivienda cuenta con 55m2 construidos en porches/pérgolas, correspondientes al porche de acceso, salón-comedor y pérgola garaje.

PLANTA ALTA
Este nivel cuenta con una superficie de 205m2 construidos (165.5m2 útiles) mayor que la vivienda tipo 1, repartidos en un distribuidor, dormitorio principal con cuarto de baño en suite y vestidor (total +35m2), dos dormitorios de 14,6m2 y un cuarto de baño.

VISTAS EXTERIORES

La fachada de estas viviendas sigue las líneas de la promoción. Están igualmente formadas por una fachada ventilada compuesta de paneles de cemento reforzado con acabado en color blanco, gris y madera, donde encontramos grandes ventanales dispuestos en la fachada. La distribución de los acabados refuerzan la disposición vertical de la vivienda.

