- Arquitectura
- Buenos Aires
- green
- Hitzig Militello
- Interiorismo
- restaurantes
El proyecto cuenta con una impronta de detalles modernos neutros e industriales.
La neutralidad está dada por el equilibrio de sus materiales y sus tonos en blancos. Todos sus materiales han sido utilizados en un equilibrio bitonal de negros y blancos, salvo detalles de aluminio corrugado y el piso engomado negro.

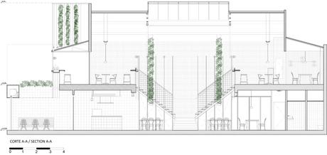
Desde el inicio entendimos que la marca es, como su nombre lo indica, un sitio cuya identidad está marcada por la naturaleza de sus materiales simples, sus productos frescos y naturales. A partir de esta reflexión hemos sugerido implementar una naturaleza de presencia viva y protagónica evitando caer en la utilización de naturaleza estática. Esta naturaleza es forma y función en todas sus intervenciones, funcionan como sistema lumínico y como paisaje activo en varias de sus barras.
Sus materiales de referencia directa con los años ´50, nos ha sugerido una identificación con el sistema compositivo de líneas modernas a partir de su organización modular en la fachada. El tejido metálico de presencia fundamental en el proyecto está conformado por una sencilla malla metálica de 15×15, la cual genera diversas profundidades como un velo que deja ver entre sus tejidos la antigua fachada original de la edificación.

Aplicamos el mismo sistema de tejidos en diversas profundidades, en el primer piso “balconeando” al espacio central, constituido por una barra que mira hacia este corazón, coronado por seis grandes soportes de iluminación rodeados de vegetación. Las especies de vegetación utilizadas son helechos, Philodendros varios, Helechos varios, Potus lemon o verde, Calatheas, Dracenas, Zamioculcas, Crotones, Spatyfilium y etc.

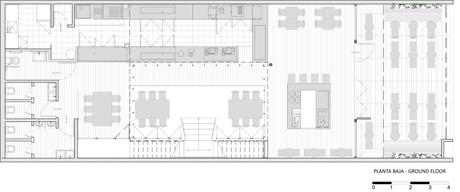
Hemos extendido la planta alta construyendo y uniendo, a modo de puente, entre dos áreas en el primer piso sin conexión. Eso unifico toda la planta alta coronado por una gran barra perimetral.
En la fachada se utilizaron tejidos metálicos ubicados en diferentes profundidades para la incorporación de vegetación diseñada a través de cilindros. Esta estrategia permite ver la antigua fachada sugiriendo un interés por preservar la historia del antiguo edificio. A través de esta operación hemos logrado unificar la línea de fachada del balcón y el frente, logrando un espacio semicubierto de uso.

La repetición y modulación nos ha permitido establecer orden desde donde hemos propuesto una iluminación especialmente diseñada, con una reminiscencia de los años cincuenta. De la misma forma el revestimiento de madera en varillado representa una estética vinculada a esta época.









































Equipo de proyecto:
Documentación de obra: Arq. Jeanette Zotta
Dirección de obra: Arq. Jeanette Zotta
Programa: Restaurante
Superficie: Planta baja 190 m2 / Planta alta 122 m2
Constructora: E7-Construcciones
Renders: Arq. Elena Gonzalez
Fotografia: Federico Kulekdjian
- Arquitectura
- Buenos Aires
- green
- Hitzig Militello
- Interiorismo
- restaurantes

