Metales con brillo, textiles, plantas y flores frescas, muebles con cristal… estos son algunos de los trucos para llevar el glamour a la decoración, incluso a un pequeño estudio de 31 m².
En delikatissen ha quedado demostrado con muchos ejemplos, a lo largo de los años, que lo importante para crear un ambiente u otro en una vivienda, no es sólo cuestión de espacio, sino de talento decorativo, imaginación y ganas.
Hoy vemos otra muestra más de lo que pueden dar de sí unos pocos metros cuadrados, decorativamente hablando. Y es que, pensareis que en 31 poco se puede hacer, pero en cuanto veáis todas las imágenes cambiareis de opinión.
A la propietaria de este estudio le encanta el glamour, el estilo nórdico y el art decó y así lo ha plasmado en la decoración. Muebles que mezclan metal y cristal, mucha luz natural, flores y plantas frescas, textiles en cada rincón, mármol de Carrara en la cocina de muebles blancos… todos estos elementos son característicos de este tipo de decoraciones.
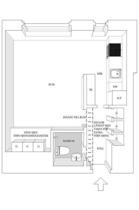
Observando el plano vemos lo increíblemente bien aprovechada que está la planta de este minipiso, con absolutamente todo lo necesario para una persona y espacio de almacenaje suficiente, tan difícil de alcanzar en estas viviendas. Espero que os guste ¡feliz lunes!












Vía: bjurfors
