
Hoy desde el estudio de arquitectura A-cero, dirigido por Joaquín Torres y Rafael Llamazares, queremos volver a mostraros el proyecto de las 31 viviendas adosadas, ubicadas en Torre del mar (Málaga) para Green 9 Cool Homes diseñadas por el estudio, coincidiendo con el lanzamiento de su página web. Estas viviendas de 125 m2 están divididas en dos niveles: planta baja y planta alta.
VÍDEO DE LAS VIVIENDAS DISEÑADAS POR A-CERO PARA GREEN9 COOL HOUSE
Os mostramos la presentación audiovisual de este proyecto, con las entrevistas a Joaquín Torres y Rafael Llamazares.
OFICINAS COMERCIALES
Las oficinas comerciales diseñadas por A-cero, de la promoción de 31 viviendas en Torre del mar (C/Del Mar, 68 29740 Torre del Mar - Málaga, Costa del Sol).



VIVIENDAS GREEN 9 COOL HOMES
Green 9 Cool Homes, promocion inmobiliaria en la Costa del Sol, creada por A-Cero para BDL Investment.

El estilo único de estas viviendas proviene de su exterior, pero también respira en su interior. Detalles distribuidos en dos niveles. En la planta baja encontraréis las zonas de suso más común como el hall, aseo de cortesía, salón comedor, cocina y jardín privado con posibilidad de piscina. Por otro lado, en planta alta de ubican los espacios privados: Un distribuidor, el dormitorio principal con su cuarto de baño propio y dos dormitorios secundarios con un baño a compartir.
LOCALIZACIÓN
Este conjunto de 31 viviendas se encuentra ubicado en una Urbanización exclusiva frente a un campo de golf, en la provincia de Málaga. Una sucesión de montañas de considerable altitud la resguarda de los vientos del interior asegurando más de 300 días de sol al año y una temperatura anual media privilegiada de 18 grados.

UBICACIÓN
Desde el aeropuerto internacional Málaga-Costa del Sol operan más de sesenta compañías aéreas que logran situarte a tres horas de cualquier capital europea. Madrid se encuentra a dos horas y media de Málaga, gracias al tren AVE, de alta velocidad. Desde Green 9 por la autovía del Mediterráneo conectas con Málaga capital y toda la comarca.
1. Centro Comercial «El Ingenio» a 4’
2. Hospital Comarcal de la Axarquía a 4’
3. Torre del Mar a 2’
4. Autovía del Mediterráneo a 1’
5. Playa a 2’
6. Puerto Deportivo de la Caleta a 3’
7. Caleta de Vélez a 3’

CROQUIS

ALZADOS VIVIENDA TIPO


SECCIONES VIVIENDA TIPO

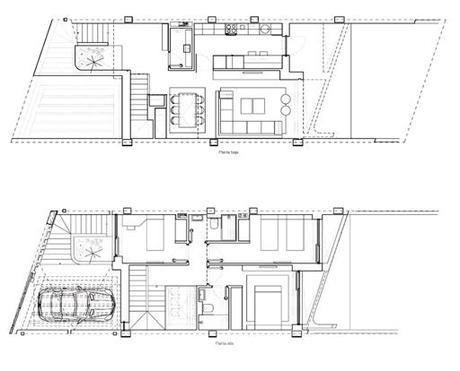
VIVIENDA TIPO
La vivienda tipo cuenta con una superficie total de casi 125 m2, distribuidos en dos niveles: planta baja y planta alta. En la planta baja encontramos las zonas más comunes de la vivienda como el hall, un aseo de cortesía, un salón-comedor de 26 m2, una cocina de 11 m2, 2 porches y una terraza. Por otro lado, en planta alta se ubican lo s espacios privados, entre los que encontramos un distribuidor, el dormitorio principal de 13 m2 con su cuarto de baño propio de 3,5 m2 y dos dormitorios secundarios de 11 m2 y 9 m2 con un baño a compartir de la misma superficie que el anterior. Y, por último en este mismo nivel encontramos el acceso al aparcamiento con capacidad para un vehículo.
PLANO VIVIENDA TIPO

VIVIENDA DÚO Un espacio duplicado, con el doble de superficie..

VISTAS EXTERIOR
Green 9 Cool Homes en primera línea de Baviera Golf se inspira en un entorno natural y deportivo para evolucionar hacia la funcionalidad y el diseño. Con la precisión de un pateo en el green. El enclave donde se localizan estas viviendas proporciona un entorno cuyas magníficas vistas invitan a la serenidad y el descanso. Frente a la propuesta anterior, se disponen en la fachada trasera ventanales en la planta baja.

Estas viviendas adosadas comparten una fachada exterior de forma continuada acabada en paneles de cemento reforzado en color blanco y aluminio. La planta alta queda enmarcada con un elemento curvo dibujando un ángulo recto en uno de sus laterales, para sobresalir en el opuesto coincidiendo con el muro de separación entre adosados.

En muros exteriores de color blanco se marca la verticalidad de los vanos con un acabado en aluminio que continúa su recorrido.

De un muro exterior se proyecta una pérgola con una terminación ascendente, que a su vez cumple una función de aparcamiento. Hay que destacar los amplios vanos que se han dispuesto en la fachada frontal para esta nueva propuesta.

Este conjunto de viviendas constituye una exclusiva urbanización a lo largo de una ancha avenida, donde el diseño del estudio A-cero y la arquitectura típica del sur peninsular se funden en un magnífico resultado.

VISTAS INTERIOR
El salón cuenta con un gran ventanal que le proporciona luz natural a las zonas de uso común. El color blanco y negro se utilizan para lograr una atmósfera de contraste en el conjunto del interiorismo. Las carpinterías de aluminio ocultas en paredes y amplios ventanales aporta una mayor limpieza estética para disfrutar del porche, unido visualmente al salón, formando un todo.

El comedor se sitúa en un punto de conexión entre las estancias de la planta baja. Se aprovecha la arquitectura para crear una doble altura coincidiendo con el espacio de la escalera de acceso a planta alta. El tragaluz en la escalera distribuye luz natural por toda la planta baja, diáfana gracias a la barandilla de vidrio anclada a la escalera formando un único cuerpo. La puerta de cocina se contempla como una hoja pivotante en vidrio templado y laminado.

Para personas que buscan más espacio, la vivienda dúo cuenta con un amplio salón de doble altura iluminado por luz exterior proveniente de tragaluces abiertos en vanos a doble altura.

En el porche, coronado por la singular volumetría de la fachada, encontramos un área perfecta para el descanso frente a la que se encuentra la piscina. El exterior ofrece un espacio personal y exclusivo, oculto a desconocidos a la vez que permite la visibilidad del entorno natural desde el interior. El cielo queda visible bajo una cornisa con forma de palo de golf, curva, dinámica y resguardada.

En la cocina los electrodomésticos y armarios se encuentran en línea con la pared, con un acabado en madera lacada brillo color negro, creando un contraste con el acabado blanco de muros, techo y encimera. Cuenta con acceso al porche y jardín privado por una puerta de vidrio abatible realizada con carpintería de aluminio.

En el dormitorio principal, situado en planta alta, destaca el amplio ventanal que deja pasar la luz. El acabado en color blanco del dormitorio consigue crear una sensación de armonía y amplitud. En todos los dormitorios los armarios cuentan con acabados en madera hasta el techo inclinado de escayola.

Baños de planta alta con luz natural gracias al lucernario ubicado en el techo, curvo e inclinado. Cuenta con acabados en piedra natural gris y fijaciones ocultas para proporcionar líneas limpias para mayor belleza.

VISITA LA PÁGINA WEB DE GREEN 9 COOL HOMES
Si estáis interesados , os invitamos a visitar la página web de Green 9 Cool Homes donde podéis descargaros un catálogo con más información sobre la promocion inmobiliaria de BDL Investment en la Costa del Sol.

