Este artículo ha sido motivado por Marcos Roma y basado en un artículo de el País (ver) titulado “La esperanza en un hornillo de arcilla”.
El tema se centra en el desarrollo de las hogueras tradicionales para su mejor adaptación a las necesidades y aprovechar al máximo su energía (para calentar agua en depósitos paralelos), aprovechar mejor la leña y por tanto ahorrar en combustibles vegetales. Todo esto puede parecer de lo mas normal, y lo es, para el primer mundo. El caso de estudio se centra en Malawi, donde por necesidad, la cocina con hornillo alimentado por combustibles vegetales es el método que utiliza el 90% de la población.
El artículo del Pais tiene un enfoque que se va más allá, y es ahí donde estaría bien citar ciertos datos y enunciar algunas reflexiones, más adelante explico en que se basan estos nuevos hornillos.
La exposición a la quema de combustibles en interiores provoca muertes por problemas respiratorios en, según el artículo, unas 600 personas al año. Un dato no muy relevante si tenemos en cuenta que unas 130 personas al día mueren por enfermedades relacionadas con el VIH.
La modernización de las cocinas y el paso de la cocina de “tres piedra” a este nuevo concepto parece ser de un fuerte interés comercial, y hasta 2020 no podrá estar en “todos los hogares”. Lo que realmente hay que considerar es que esos avances que están “descubriéndose” para la gente de Malawi realmente en la sociedad del primer mundo, son más que conocidos (por poner un ejemplo, los sistemas de los romanos en las termas).
Un producto como puede ser la cocina mejorada, en arcilla es un artículo que es de fabricación muy barata y que podría ser llevado a estos países con un ánimo más humanitario, no como por ejemplo la empresa Phillips, es decir, no se puede jugar con las necesidades primarias de las personas.
Básicamente el diseño de las cocinas mejoradas de Malawi se concentra en reducir el consumo de materia prima reduciendo la entrada de aire y evitando las corrientes de aire laterales que avivan el fuego.
En Perú ya no son extrañas las Cocinas Mejoradas Certificadas, una gran evolución que está teniendo su tirón.

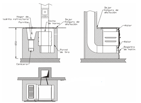
En España, ya han pasado a la historia las cocinas bilbaínas, que hacían recircular el aire caliente alrededor de un horno, con un tiro regulable, con entrada de aire por la parte inferior, con registros para la limpieza de la chimenea, productos de los que ahora ya existen modelos deluxe, muy rococós, vamos, todo un lujo.

