En la recomendación de hoy, desde A-cero, os mostramos este proyecto de Reiulf Ramstad Arkitekter en Knarvik (Noruega). Situándose sobre una ladera rocosa de la localidad de Knarvik, en la región noruega de Hordaland, la iglesia emerge con su silueta quebrada y prominente que apunta al cielo.

El edificio es una reinterpretación de las construcciones religiosas, en madera, propias de la arquitectura tradicional escandinava. Ascendiendo en diferentes planos triangulares de cubierta, la iglesia se extiende por las lineas de la topografía. El volumen facetado está envuelto con paneles de madera de pino, tratados para conseguir una coloración moteada, con la intención de mimetizar el edificio con el entorno.

Desde una escalera de hormigón se llega al acceso principal, cuyo pronunciado retranqueo, a modo de refugio, invita a entrar. El dinamismo enfatizado de la cubierta plegada contrasta con el recinto interior, asentado sobre una sencilla planta rectangular. Los dos niveles de la iglesia están bañados por la luz natural captada por las estrechas ventanas.

CROQUIS

ALZADOS

SECCIONES

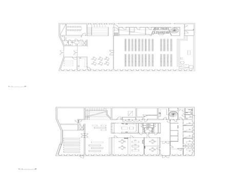
PLANOS

El proyecto de 2014 abarca un area de 2250 m2. En palabras de los arquitectos, “La nueva iglesia de la comunidad en Knarvik, situada en la pintoresca costa oeste de Noruega al norte de Bergen, está construida en un lugar privilegiado con vistas al paisaje cultural y centro de la ciudad local. El edificio está adaptado cuidadosamente a una ladera existente entre el medio ambiente construido y natural, proporcionando a la iglesia el contexto inspirador del paisaje páramo circundante. Su carácter distintivo e innovador y su céntrica ubicación la convierte en un punto de referencia en la comunidad, inclusiva para todas las personas a cultivar su fe durante toda la semana”.



La iglesia señala su función con una dignidad sacra y forma reconocible, donde la torre de la iglesia, santuario y la capilla se enfatizan ascendiendo planos de cubierta. Inspirado por la tradición local de iglesias de madera de Noruega, el edificio utiliza claros y geometrías, materiales y construcciones elementales.




El volumen compacto del edificio se divide en dos niveles en una planta rectangular, separando los espacios sagrados sobre las funciones culturales y administrativas de abajo. Un “plaza de la iglesia” interna conecta los dos niveles con una escalera-atrio en un espacio continuo, y puede estar unido o separado del santuario gracias al desplazamiento de los muros de cristal para dar cabida a más de 500 personas.


La madera es el material clave del proyecto, expresado en el revestimiento homogéneo de duramen de pino prepatinado y reflejado por el acabado de pino de color claro en todas las superficies interiores. El edificio permite la luz del día al interior de su volumen, a través de ventanas altas y estrechas, abocinadas en la planta para maximizar el ingreso y reducir el deslumbramiento. Por la noche, la luz cálida del interior revela las actividades de sus eventos religiosos y culturales.

Fuente: Plataforma Arquitectura
