
Hoy el estudio de arquitectura A-cero, dirigido por Joaquín Torres y Rafael Llamazares, presenta nuevas imágenes de la instalación de una vivienda A-cero Tech modelo Basic B2 de 89,08m2 distribuida en una sola planta, al noroeste de la Comunidad de Madrid
CROQUIS

IMPLANTACIÓN EN PARCELA

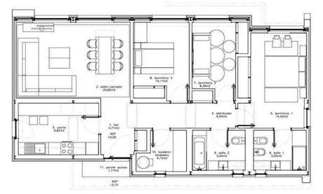
PLANTA BAJA
Se trata del modelo descatalogado BASIC B2 (sin extras), un modelo tipo de 108,05m2 construidos y 89,08m2 útiles repartidos en una sola planta. La superficie se distribuye en un hall, salón comedor, cocina, distribuidor, tres dormitorios, os cuartos de baño y un lavadero tendedero. En esta opción se ha unido el salón y el dormitorio más cercano eliminando el tabique original.

VITA 3D IMPLANTACIÓN + PAISAJISMO
Los acabados de fachada en esta vivienda unifamiliar A-cero Tech están realizados en composite negro y vidrio negro. En esta imagen os mostramos la vivienda ya instalada en una recreación del paisajismo resuelto.

PROCESO DE SANEAMIENTO Y CIMENTACIÓN






INSTALACIÓN MODELO BASIC B2






