
El estudio de arquitectura de A-cero, presenta un nuevo proyecto ubicado en una zona residencial de Aravaca, Madrid. Se trata de una urbanización formada por viviendas unifamiliares de altas calidades y acompañado del diseño A-cero.
PLANO URBANIZACIÓN
Este conjunto residencial está formado por nueve viviendas unifamiliares de más de 500 m2 situadas en unas parcelas de 1.000 m2 con piscina y un amplio jardín. Una exclusiva área residencial cerrada, con seguridad, acceso único y vigilado.

PRIMERA VIVIENDA En el post de hoy os mostraremos las imágenes del proceso de construcción de la primera de estas viviendas. Este modelo de 518 m2 esta distribuido en planta sótano, planta baja y planta primera.
CROQUIS

EMPLAZAMIENTO

SECCIONES

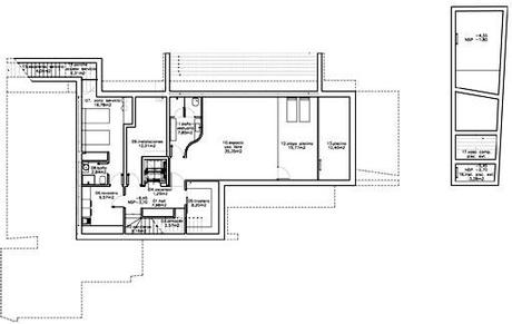
PLANTA SÓTANO
En este nivel de 158,11 m2 está destinado a albergar la zona de servicio (que se compone de un dormitorio y cuarto de baño) y diferentes estancias como un espacio de uso libre, cuarto de instalaciones, almacén, trastero y lavadero.

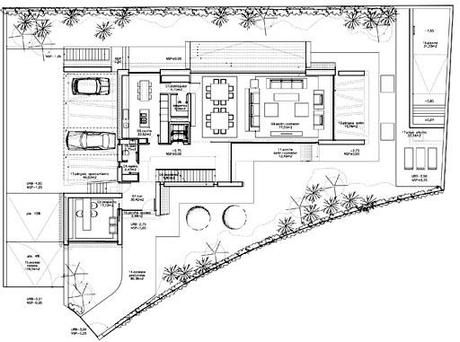
PLANTA BAJA
La planta baja cuenta con 198, 26 m2 que se dividen en diferentes zonas de uso común: el porche de entrada, hall, distribuidor, despacho, ropero, aseo de cortesía, cocina, despensa, salón comedor apergolado con porche, pérgola de garaje y piscina exterior.

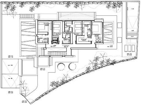
PLANTA PRIMERA
Este nivel está dedicado a las estancias más privadas de la vivienda. Un distribuidor nos conduce a un dormitorio principal (con cuarto de baño y vestidor), dos dormitorios en suite y un dormitorio para invitados con cuarto de baño.

IMÁGENES DE LA URBANIZACIÓN


IMÁGENES 3D VIVIENDAS UNIFAMILIARES
El acabado de la fachada se resuelve en hormigón visto, composite de madera, vidrio color bronce y carpinterías de aluminio.






IMÁGENES DE OBRA
Movimientos de tierra












Muros y velas












