
El estudio de arquitectura A-cero, dirigido por Joaquín Torres y Rafael Llamazares, presenta un nuevo proyecto de vivienda unifamiliar en una villa diseñada en la India. La vivienda principal cuenta con una superficie total de 1.500m2 dividida en planta baja y planta alta; a la que acompañan un edificio de servicio y un edificio exterior independiente.
CROQUIS


ALZADOS

SECCIONES

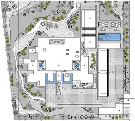
PLANTA BAJA
El edificio principal, con una superficie de 960m2 en planta baja, está dividido en diferentes zonas. Una zona de uso privado y familiar compuesta por un hall principal de 130m2; sala de puja; un dormitorio de 30m2 aprox con cuarto de baño, guardarropa y hall; un segundo dormitorio de dimensiones parecidad con hall, cuarto de baño, guardarropa y sala de estar; sala de dibujo de 63m2 y salón familiar de 123m2. Entre las zonas de uso común de este nivel distinguimos el comedor de 60m2, cocina de 35m2 , ascensor y escaleras y un aseo. Finalmente, la zona de servicio se compone de lavandería, dos dormitorios y un cuarto de baño.
El edificio exterior cuenta con una sala de juegos de 117m2, cocina, aseo, una sala de cine, dos vestuarios con un aseo y aparcamiento. La piscina, de 60m2, cuenta con una terraza de 205m2 a su alrededor.

PLANTA ALTA
Este nivel de 250m2 está dedicado a zonas de uso privado. En el encontramos el dormitorio principal con ropero y cuarto de baño, dos dormitorios también con baño propio y vestidor, un almacén y los accesos por las escaleras y ascensor.

PLANTA CUBIERTA

VISTAS EXTERIOR
Se tata de una vivienda con un marcado carácter escultural. La fachada se proyecta al exterior gracias a la inclinación de los muros donde las líneas abandonan el ángulo recto para jugar con los diferentes volúmenes.

Vemos un contraste en el acabado de la fachada, realizado en piedra natural, que enfatiza los diferentes eelementos arquitectónicos que la forman. El escultural porche de entrada de 25m2 invade el acceso rodado de la vivienda de más de 600m2.

El agua se convierte en un elemento que está siempre presente en este proyecto, incorporándose en láminas que se sitúan en la entrada principal, y en dos de los patios interiores.


Como en la mayoría de los proyectos del estudio, se busca la entrada de luz natural mediante grandes ventanales que forman paños de vidrio con acabado color bronce.

El edificio de servicio se compone de una sala de seguridad para el acceso a la vivienda, un dormitorio para el personal de servicio, dos cuartos de baño y un hall.

La piscina de 60m2 se encuentra entre los diferentes espacios abiertos de la villa, que suman una superficie cercana a los 1.500m2.

Un porche con un diseño de formas orgánicas cubre el aparcamiento exterior de 210m2. Esta vivienda cuenta con cerca de 470m2 de superficies cubiertas en el exterior, donde encontramos diferentes porches en el acceso, entrada, dormitorios, sala de juegos, etc.

VISTA INTERIOR
El interior comparte el contraste de los acabados de la fachada. El color blanco es el protagonista, buscando la continuidad y creando espacios diáfanos, principalmente en las zonas comunes donde juega con la doble altura. Una continuidad que se proyecta hacia el exterior gracias a la conexión entre el interior de la vivienda, mediante los amplios ventanales dispuestos.

IMÁGENES DE OBRA














