
Hoy queremos presentaros imágenes inéditas de la fachada diseñada por A-cero para la rehabilitación del antiguo mercado municipal de Abastos de Getafe.
UBICACIÓN
El nuevo Centro de Usos Múltiples tiene lugar en el antiguo Mercado Municipal, ubicado en una parcela urbana situada en la Plaza de la Constitución c/v a la Calle Jardines, en el municipio de Getafe, Madrid.

PLANOS ESTADO PREVIO | ALZADOS

PLANOS ESTADO PREVIO | SECCIONES

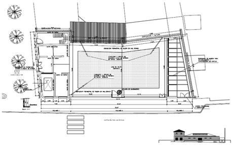
PLANOS ESTADO PREVIO | PLANTA BAJA
El solar es de forma irregular con una superficie de 510m2. El conjunto está formado por dos edificios y un solar vacio. El primero de ellos con dos plantas de altura alberga la entrada principal y da frente a la Plaza de la Constitución.

PLANOS ESTADO PREVIO | PLANTA ALTA

IMÁGENES ESTADO PREVIO | FOTOGRAFÍAS EXTERIOR
El conjunto presenta fachada a dos calles y medianera con tres parcelas colindantes; una de
ellas construida recientemente con un edificio de viviendas de 5 plantas; las otras edificaciones
de una y dos plantas respectivamente son de carácter similar al edificio de servicios del conjunto que se pretende rehabilitar.


ESTADO REFORMADO | ALZADOS

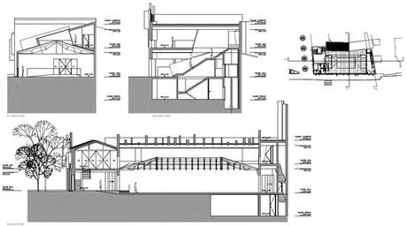
ESTADO REFORMADO | SECCIONES

ESTADO REFORMADO | VISTA EXTERIOR
La idea de proyecto trata de conservar el carácter del edificio así como los elementos más característicos y diferenciadores de las edificaciones a rehabilitar. Se mantienen volumétricamente ambas edificaciones con sus muros de ladrillo y sus cubiertas.

Se plantea una fachada a modo de piel formada por costillas que atraviesan transversalmente el edificio emulando el ritmo de las cerchas interiores del espacio diáfano que formara la sala de usos múltiples y que permiten ver la antigua fachada de ladrillo entre ellas. Al mismo tiempo se convierten en la fachada a la Plaza de la Constitución y permiten ocultar las medianeras adyacentes. Como elementos de preexistencia se mantiene la entrada y el balcón de hierro fundido de la primera planta que seguirán marcando la entrada al edificio. Del mismo modo se propone una envolvente a modo de piel para proteger la cubierta de cerchas de la sala principal a modo de lucernario y que alberga en su interior la pasarela que unirá los edificios preexistentes con la parte de nueva construcción.

Esta pasarela ademas de formar parte del sistema de comunicación del edificio se convierte en mirador sobre la cubierta de la nave, zona de estancia (graderio)y de relación. Las costillas planteadas tendrán un papel muy importante como mitigadores de la entrada de luz y calor en los lucernarios sobre la sala principal y albergarán la iluminación del edificio. Esta regulación lumínica se verá potenciada por la utilización de estores motorizados que se adaptarán a las necesidades del espacio en cada momento.

IMÁGENES DE OBRA | EXTERIOR







