
Textos:De la redacción de Croquizar. Decir mucho, en pocas líneasEn base a fuentes libres citadas en el artículo
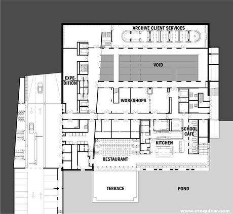
El Instituto Holandés de Imagen y Sonido consiste en un edificio de cinco niveles bajo tierra y cinco niveles sobre la tierra. En el subsuelo se ubica el archivo nacional de la radio y televisión holandesa. Sobre la tierra se encuentra el museo de los medios. En un tercer recinto se ubican las oficinas del Instituto.
Los archivos audiovisuales (que necesitan condiciones climáticas rigurosamente estrictas) se conciben como cinco plantas subterráneas. Las salas de exposición están organizados en una gran forma de zigzag flotando en el aire, en los 5 niveles superiores.
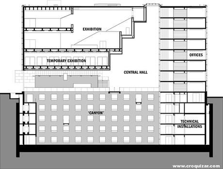
Las oficinas del instituto se encuentran en un sector lateral del edificio. Juntos, estos tres volúmenes distintos forman un cubo gigante, parte por encima del suelo y parte por bajo de la tierra, mientras que deja un espacio vacío gigante en el medio. Este espacio central “cose” todos los componentes del instituto. Es el atrio público central para los visitantes, profesionales y colaboradores, que se utiliza para las reuniones de la comunidad de la televisión en el Media Park. La cascada escalonada invertida de los pisos del museo, revestido con placas de metal, se registra como una escultura que da forma y escala al espacio interior del edificio.
Desde la entrada al edificio, los visitantes son guiados a través de un puente sobre un profundo cañón que muestra dramáticamente la escala y la magnitud de la bóveda de archivos. Uno de los lados del cañón es una pared al ras con ventanas que irradian una penumbra naranja, como si los sonidos y las imágenes ocultas hablan al visitante desde el interior de los archivos.
En el otro lado del cañón se eleva una serie de terrazas invertidas que contienen los estudios de visualización para los investigadores profesionales. La luz cenital ingresa a través de los tragaluces hacia los niveles más bajos de la bóveda.
La fachada de vidrio se basa en las imágenes de TV originales que fueron tomadas de los archivos de la institución y se tradujo en 2.100 paneles de vidrio de diferentes colores en relieve, compuesto por el diseñador gráfico Jaap Drupsteen; de esta manera se logra que la luz natural pase a través del cerramiento y estas “vidrieras contemporáneas”, dan al edificio una superficie ligeramente táctil, donde las imágenes icónicas de TV de la historia holandesa aparecen y desaparecen durante el día y la noche.
Programa: Museo / Archivo / Instituto Ubicación: Hilversum – Holanda Autores: Neutelings & Riedijk Fecha: 2006Fotografía
















Recaudos gráficos




Geolocalización
