
A-cero presenta uno de sus últimos trabajos en vivienda unifamiliar. En este caso, una casa de 900 m2 construidos en una sola planta, sobre una idílica parcela a la que una cuidada jardinería la dota de un conjunto de lagos y montículos que crean una propia orografía paisajística.
SECCIONES



DIFERENTES OPCIONES DE PLANTA
OPCIÓN I

OPCIÓN II

OPCIÓN III

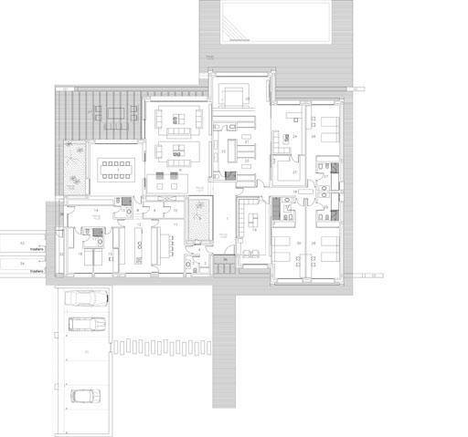
PLANTA DEFINITIVA

INTERIORISMO A-CERO

Una vez dentro un amplio hall, tanto en el interior como en el patio que ayuda por otra parte a la entrada de luz natural. Continuando por el Hall desembocamos al ala derecha de la vivienda que es la parte más pública. El gran salón con una doble altura considerable tiene dos zonas diferenciadas. En general, respecto a la decoración, se ha optado por una gama claros y oscuros, que crean espacios acogedores, a la vez que modernos y sofisticados, en los que no faltan puntos de encuentro que invitan a sentarse y relajarse.





Continuando con el estilo elegante y ordenado de A-cero, el interior de la construcción destaca por una distribución diáfana y funcional. En el ala izquierda se localizan las estancias más privadas (cuatro dormitorios con sus respectivos baños) un cuarto de juegos y una salita de estar.



La cocina, de un tamaño no excesivamente grande y muy práctico, comunica con el comedor, la zona de servicio, el office y un aseo de cortesía. Una ubicación perfecta por la comodidad que ofrece su acceso a través de todas estas estancias.

EXTERIORES


La vivienda presenta su fachada con un diseño exclusivo de volúmenes geométricos en colores naturales que se integra armónicamente en el paisaje: en piedra caliza Limestone combinado con piedra caliza marrón oscuro “Teak” y piedra caliza beige “Niwala”. Ambos modelos de la empresa “Icimar, orientándolas a las vistas de los lagos y del área arbórea que se extiende por las zonas comunes de la urbanización.


Exterior e interior se aúnan a través de grandes ventanales convirtiendo el paisaje en una zona más de la residencia y rentabilizando al máximo la luz natural. Las cubiertas desaparecen convirtiéndose en una azotea plana como expresión de la evolución del proceso creativo. La pureza de formas se traslada al esquema constructivo, a los materiales y al entorno impulsando la unión entre la edificación y el contexto donde se ubica.




Para esta vivienda, de 900m2, A-cero ha realizado el interiorismo y el paisajismo de acuerdo a las necesidades y a la estética del propietario.
