La disonancia y la paradoja
Marcelo Gardinetti
“Desde mediados de los años setenta, Stirling puso de manifiesto su lucha contra el aburrimiento producido por la repetición de la arquitectura moderna, contra su trivialidad y su incapacidad para emplazarse en contornos históricos. Para ello intentó desplegar una obra que fuera narrativa y figurativa y, a la vez, abstracta y avanzada tecnológicamente” 1
La obra arquitectónica de Stirling transita la posguerra entre las diferentes propuestas que buscan reformular los conceptos fundacionales del movimiento moderno. Para Stirling, la manera de enriquecer el legado moderno reside principalmente en la incorporación de elementos de la tradición local, “una combinación de formas canónicas del movimiento moderno con elementos extraídos del vernáculo industrial” 2

Las referencias implícitas a la arquitectura de Melnikov, Le Corbusier o Hannes Meyer se conjugan a su manera, en el uso de ladrillo y piedra junto a materiales de tecnología avanzada. Conjunción vernácula-tecnológica se hace visible en el laboratorio de ingeniería de la Universidad de Leicester (1959- 1963), en la facultad de historia de la Universidad de Cambridge (1964-67) y el Queen´s College de Oxford (1966-1971), aunque los requerimientos funcionales nunca están condicionados por el significado de las formas. Del mismo modo actúa en los proyectos para la empresa de acero Dorman long en 1965 y el centro Olivetti de Haslmere de 1969, pero en estos casos las expresiones mecanicistas son más categóricas.
A comienzos de los 70, Stirling asume una actitud más sensible a las características del entorno. Tanto en el proyecto para el Centro Cívico de Derby (1970) como en el Centro artístico de la Universidad de St. Andrews (1971), las decisiones proyectuales privilegian y enriquecen la continuidad de la trama urbana.
En 1974, en una de sus conferencias, Stirling fortalece su interés por el contexto y el uso de elementos que la comunidad identifica: “El arte de la arquitectura puede ser la manera en que se ensamblan los elementos simbólicos funcionales… pero, el edificio total, debe surgir de un ensamblaje de los elementos de la vida diaria, reconocibles para un hombre común y no solo para un arquitecto”3
Cuando en 1977, presenta el proyecto para la ampliación del Museo estatal de arte de Stuttgart, ratifica esa actitud contextualista. El terreno destinado a la ampliación, adyacente a la estructura neoclásica de la Staatsgalerie Stuttgart de 1837, tiene forma irregular y presenta una pronunciada pendiente, y además enfrenta una calle que inicia su descenso hacia un pasaje subterráneo.4
El diseño apela al uso de la tipología como una matriz donde gravitan elementos con diferentes atributos. El trazo genealógico reinterpreta las características formales del Altes Museum de Schinkel. Esta referencia no parece casual, habida cuenta que varios historiadores consideran ese proyecto como una nueva tipología museística del siglo XIX generada por la conjunción de varias tipologías de la historia clásica.5 Sobre esa matriz, Stirling produce alteraciones, cortes y adiciones, e incorpora un repertorio formal complejo, hasta alcanzar una sintaxis similar a las composiciones cubistas.



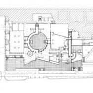
La ampliación se ordena mediante un eje axial. Con reflexiva habilidad, Stirling enfrenta lo antiguo y lo moderno sobre una misma trama, sin que las formas se fundan en un solo objeto. Del mismo modo que en el Altes Museum, la planta de las salas de exposición en formas de U contiene una figura circular, pero en este caso sin cúpula y sin el pórtico de acceso. La sala central circular se convierte en un patio abierto y el frontis en una plaza de acceso rectangular donde una doble hilera de árboles alude simbólicamente a la columnata suprimida.
Los espacios museísticos revalorizan la tipología tradicional de salas en fila, pero se complementan con otros de planta libre. El vínculo con la antigua estructura está determinado por una circulación transversal que permite el funcionamiento conjunto, pero resguarda la autonomía del viejo edificio.
“En lugar de estar contenida en los brazos de la galería, esta tumultuosa serie de eventos plásticos se proyecta hacia adelante, y oculta parcialmente las alas de la galería. El eje central del edificio está marcado por una placa de acero y vidrio al pie de la rampa y por una puerta central que da acceso al edificio a nivel de la calle. Pero esta puerta resulta ser simplemente una abertura de ventilación hacia el garaje, posiblemente otra referencia a Walhalla. La entrada real al edificio está descentrada, y por medio de un movimiento paralelo al plano del edificio, a lo largo de un vestíbulo de “forma libre”. Esta violenta y fragmentada composición de planos inclinados y cilindros es controlada por un ingenioso movimiento secundario por el cual el bloque de teatro experimental es empujado hacia adelante para equilibrar el ala derecha de la antigua galería. Toda la composición se lee así como tres fachadas a dos aguas (dos viejas y una nueva) que contienen dos espacios contrastantes: el vacío del patio de proa y el sistema de rampas hacia el nuevo edificio. Esto no corresponde exactamente a la comprensión intelectual de la organización del edificio, en el que lo que domina es el bloque de galerías en forma de pico” 6
Por fuera, las figuras que se superponen en la trama tipológica están determinadas por la función y por su situación en relación al contexto. Un sendero peatonal que actúa como prolongación de la calle, permite atravesar el museo, en un recorrido de perspectivas cambiantes, que muestra la plaza y la variedad de formas que construyen el conjunto edilicio. La fachada se disuelve entre rampas y escaleras necesarias para salvar la pendiente del terreno, propiciando un entorno dinámico que acentúa el carácter público del edificio. La yuxtaposición de texturas y colores, el uso artesanal de elementos de escala alterada y la aplicación de los avances tecnológicos, conforman un edificio que es a la vez ecléctico, plástico e innovador.



“el nuevo edificio para el museo de Stuttgart puede ser un collage de viejos y nuevos elementos, cornisas egipcias y ventanas románicas, pero también marquesinas constructivistas, rampas y formas fluidas: una unión de elementos del pasado y del presente. Tratando de evocar una asociación con la idea de museo encuentro los museos del siglo XIX más convincentes que los del X” 7
Stirling apela a la metáfora para desplegar un juego sofisticado. Emplea formas de la historia académica y de la arquitectura vernácula para componer un intencionado collage escenográfico, en el que altera la proporción de los elementos que extrae de otras arquitecturas y los ensambla en una maniobra de aparentes contradicciones. En esta obra, Stirling resume un razonamiento compositivo complejo y personal donde, tal como señala Montaner, la disonancia y la paradoja serían su estrategia estética.
©Marcelo Gardinetti, 2017
Fotografía: Galería : ©staatsgalerie.de, Galería 2: ©Timothy Brown
Foto de portada: ©Marcel Krenz
Notas:
1 Josep María Montaner, Después del movimiento moderno, Cap. XV la versatilidad del eclecticismo. Barcelona, Ed. G.G. 1993
2 Kenneth Frampton, Historia crítica del movimiento moderno, Barcelona, ed. G.G. 1981 pág. 271
3 James Stirling, Segundo congreso internacional de arquitectura, Persépolis, 1974 – citado por: Alejandro Gómez García, El proyecto cubista: De Le Corbusier a Stirling, Tesis Doctoral, 2001
4 “Realizada en estilo neoclásico, las tres alas del edificio original en forma de U estaban dispuestas alrededor de un patio que se abría hacia fuera en la Neckarstrasse (ahora sustituida por la Konrad Adenauerstrasse de varios carriles) y posteriormente se añadieron dos alas más anchas y largas al edificio en su lado este. Esta estructura en forma de H que ocupa toda la profundidad del lugar entre la Neckarstrasse y la Urbanstrasse fue quemada en el bombardeo de 1944 y sólo la galería en la esquina noreste se dejó en condiciones restaurables. Afortunadamente, el caparazón neoclásico y la reconstrucción de 1958-1963 se llevó a cabo dentro de las antiguas murallas.” Peter Cannon Brookes, The Post-Modern Art Gallery Comes of Age: James Stirling and the Neue Staatsgalerie, Stuttgart. The International Journal of Museum Management and Curatorship (1984), 3, 159-181 0 1984 London, Butterworth & Co (Publishers) Ltd. 1984
5 ” Observa Francesco Dal Co que el Altes Museum de Berlín, obra de Karl Friedrich Schinkel, constituye la “referencia fundamental” en la experiencia de la Neue Staatsgalerie. Las sugerencias derivadas del recuerdo de aquél y, más allá de lo meramente formal, el tratamiento que Schinkel hace de la institución museo y de su relación con la urbe y con la sociedad, definen el “contexto” desde el que se lee el museo de Stuttgart. Lo cual remite a lo referido por Ricoeur con respecto de la recepción de la obra literaria, pues, si nuestra experiencia de la Neue Staatsgalerie se efectúa teniendo en mente el museo berlinés, entonces éste condiciona u orienta en algún grado las protenciones que sucesivamente efectuaremos en el reconocimiento del edificio que contemplamos”. Óscar del Castillo Sánchez, Neue Staatsgalerie de Stuttgart o el derrumbe del clasicismo, UNAM, bitácora arquitectura número 39 p.102
6 Alan Colquhoun, Democratic monument The Architectural Press; Edición: December, Number 1054 (1984)
7 James Stirling, Architectural alms and influences, 1980 – citado en Summarios 84, año 1984, pág. 24.
TECNNE | Arquitectura y contextos






