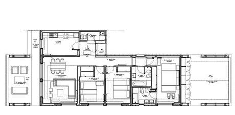
Hoy el estudio de arquitectura A-cero, dirigido por Joaquín Torres & Rafael Llamazares, presenta espectacular oferta de una sus viviendas A-cero Tech más codiciadas, a un coste excepcional y con un increíble plazo de entrega. Por solo 199.999€ puedes disfrutar de esta vivienda de más de 116 m2 construidos y más de 60m2 en porches, cuyo plazo de entrega en parcela es de tan solo 5 semanas, tras su cimentación y concesión de licencia. PLANTA Distribuida en un único nivel, tras el acceso principal entramos en un hall previo a las principales zonas de uso común: un salón comedor con porche y la cocina, que incluye cuarto-lavadero. Por un distribuidor nos adentramos en las zonas de uso más privado, formada por tres dormitorios y dos cuartos de baño (uno de ellos dentro del dormitorio principal). La vivienda incluye también una porche aparcamiento con capacidad para dos vehículos.
ACABADOS EXTERIORES Los materiales utilizados para la fachada son paneles de cemento reforzado en color blanco y madera, y el vidrio negro para los ventanales.
Esta vivienda ha sido realizada con el sistema de construcción industrializada A-cero TECH, evita provocar notables impactos en el medio ambiente, construyendo de forma más sostenible desde el punto de vista medioambiental, económico y social. El sistema constructivo y el uso de energías renovables permiten alcanzar una eficiencia energética en sus viviendas con una clasificación B.
INTERIOR DE LA VIVIENDA En estas imágenes pueden observarse los acabados y la distribución de una vivienda de esta tipología ya entregada.
La vivienda cuenta con cocina con electrodomésticos de alta gama, calefacción, y placas solares para el agua caliente sanitaria, sistema de iluminación mediante leds de bajo consumo y preinstalación del sistema de aire acondicionado.El mobiliario no está incluido el precio de salida.
El salón cuenta con una mayor altura que logra crear un espacio amplio y diáfano, reforzado por el acabado en color blanco de los muros y al gran ventanal que conecta el interior con el exterior.
La cocina, completamente equipada, cuenta con armarios y cajones acabados en madera lacada blanca. En el modelo ofertado la cocina y el salón constituyen dos espacios diferenciados sin comunicación visual, otorgando mayor intimidad y autonomía a cada espacio.
En el dormitorio disfrutamos de un ambiente de gran calidez gracias a la luz natural que inunda la estancia, resultado de los grandes ventanales que se sitúan en los diferentes ambientes de la vivienda.
El cuarto de baño del dormitorio principal está acabado de forma alterna en blanco y negro. Todos los baños cuentan con una gran iluminación gracias a los pequeños ventanales y además la introducción de espejos verticales sobre los lavabos aporta una gran sensación de amplitud.
En caso de que estar interesado, no dude en ponerse en contacto con nosotros en la dirección [email protected]
