
Ayer en “Las Casas de Torres” os presentamos una selección de fotografías de una exclusiva urbanización realizada por A-cero para Acervo inmobiliaria, ubicado en una de las urbanizaciones más exclusivas de Boadilla del Monte (Madrid) que se ha vendido en su totalidad. Los Fresnos de la Dehesa cuenta con 14 exclusivos chalets individuales y pareados, desde los 500 m² de superficie construida.
CROQUIS


LOCALIZACIÓN
Las comunicaciones desde Los Fresnos de La Dehesa son inmejorables. Nos sitúan a tan sólo 15 minutos del centro de Madrid mediante el acceso directo a la M-30 y M-40, con conexión a toda la red viaria (R-4, A-5, A-6…). Estas viviendas están próximas también a centros escolares de gran prestigio, hospitales, zonas comerciales, etc.

EMPLAZAMIENTO

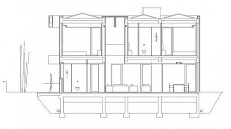
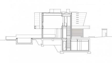
SECCIONES


ALZADOS


A continuación detallamos la distribución de un modelo de vivienda de esta urbanización en tres niveles: planta sótano, planta baja y planta alta.
PLANTA SÓTANO
Este nivel de 110,85m2 cuenta con: un distribuidor de 8,89m2, un lavadero/tendedero de 7,11m2, un cuarto de baño de 4,01m2, bodega de 9,39m2, cuarto de instalaciones de 8,21m2, gimnasio de 37, 03 m2, y un trastero de 9,03 m2.

PLANTA BAJA
En este nivel de 126,98m2 se sitúan las zonas de uso común, tales como: el vestíbulo, un aseo de cortesía de 3,09m2, la cocina de 21,64m2, el comedor de 14,65m2 y el salón de 27,03m2. También encontramos un dormitorio de 14,09m2 con cuarto de baño de 4,25m2. Se dispone un porche posterior de 7,32m2, un porche en el salón de 2,79m2 y otro en el comedor de 1,62m2. Tanto el salón como la cocina cuentan con pérgolas independientes (de 34m2 y 11m2 aprox, respectivamente). La piscina de 42m2 aprox se encuentra también en este nivel.

PLANTA ALTA
En el nivel superior, de 110,91m2, nos encontramos con las zonas más privadas de la vivienda. Distinguimos un dormitorio principal 15,69m2 con: terraza de 11,47m2, vestidor de 5,41m2 y cuarto de baño de 5,52m2; un segundo dormitorio (2,40 m2) disfruta de con cuarto de baño de 3,79m2 y por último, un tercer y cuarto dormitorio (de 12,40m2 y 11,02m2) comparten un cuarto de baño de 4,59m2.

FOTOGRAFÍAS
La estructura está formada por pilares de hormigón y forjados unidireccionales de viguetas de
hormigón y bovedillas cerámicas.

La fachada transventilada está compuesta por piedra natural tipos Bateig y basalto negro.








