
Hoy os queremos presentar un proyecto muy especial ya que se trata de uno de los primeros Lofts diseñados por A-cero. En este caso el reto del proyecto fue el de proyectar un loft en un edificio de uso industrial en el centro de Madrid.
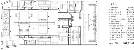
La intervención se basó en la creación de una vivienda polivalente de 342m2 útiles que incluyese al mismo tiempo una zona doméstica y un área destinada a un uso profesional.
La distribución desarrollada se caracteriza por ser un lugar versátil formado por estancias diáfanas y dividido en dos partes de acuerdo a sus diferentes funciones.
BAJO


Desde la entrada, primero se accede a una zona profesional formada por dos amplias estancias (una para reuniones) y un aseo de cortesía.
Más en el interior se localiza el área más privada del loft: un espacio rectangular formado por un amplio salón-comedor que constituye la pieza principal y central de la vivienda.


Las habitaciones más íntimas (cinco dormitorios y dos baños) se agruparon a ambos lados del salón para aprovechar al máximo la superficie disponible.



Al fondo del salón, tras un gran ventanal, se instaló un jardín en un patio interior para aportar luz natural a la edificación.


La cocina se halla justo en el lado opuesto del salón y se accede a ella a través de una puerta corredera.


La elección del color blanco (con pintura plástica lisa) en suelos, paredes, techos y en la estructura metálica refuerza el aporte de luminosidad.
Se trata de una vivienda funcional, espaciosa, de estética atrevida y líneas puras. La luz constituyó un elemento fundamental de la actuación y se iluminaron las zonas más oscuras con grandes planos de vidrio traslúcido tanto en el interior como en el exterior.


Se ha cuidado muy especialmente la elección de las piezas ornamentales, los materiales, las texturas, los acabados y los colores.



Respecto al mobiliario, destaca la gran mesa de comedor que recorre la estancia y continúa en un cómodo sofá. Esta mesa se complementó con una serie de ocho sillas Phanton de color negro.

Nos encontramos con una actuación tricolor: blanco en el contenedor y negro y rojo en un mobiliario exquisito y selecto diseñado por el propio departamento de interiorismo de A-cero. Además se recurren a elementos clásicos del diseño moderno en el que no pasan tampoco desapercibidas las sillas modelo Barcelona diseñadas por Mies Van der Rohe, símbolos de un status, que aportan una visión diferente del entorno, en una búsqueda por usar los muebles correctos.

Aquí podéis ver el vídeo que os mostramos ayer en Las Casas de Torres:
http://www.telecinco.es/salvame/2013/septiembre/25-09-2013/Joaquin-Torres-antiguo-estudio-Madrid_2_1674255215.html
