
El estudio de arquitectura A-cero, dirigido por Joaquín Torres y Rafael Llamazares, presenta el proyecto de una vivienda unifamiliar de más de 400m2, que os mostramos ayer en Las Casas de Torres.
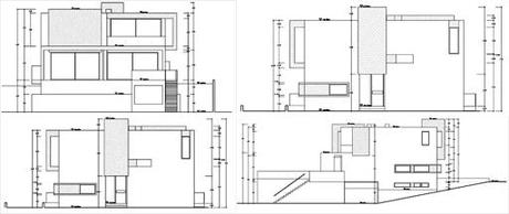
La parcela sobre la que se sitúa la vivienda adopta una forma trapezoidal. El volumen de la edificación se posa sobre el terreno en pendiente, desarrollándose en tres niveles: planta baja , planta alta sobre la rasante, y planta sótano.
ALZADOS

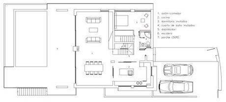
PLANTAS
Las diferentes estancias de día y los dormitorios para invitados se organizan en la planta baja, situándose en la planta superior las estancias de noche y un estudio. El garaje, los trasteros y los cuartos de instalaciones quedan ubicados en planta sótano. En el exterior se halla la piscina, unida a la casa visualmente por medio de un porche.
PLANTA SÓTANO

PLANTA BAJA

PLANTA ALTA

EXTERIORES
Las superficies de la vivienda se tratan para integrarse en el paisaje. Las fachadas se matizan con la superficie rugosa del acabado de mortero y los tonos naturales de la pintura, que acompañan el reflejo del paisaje del entorno en los amplios paños de vidrio.
La cubierta como tal desaparece, convirtiéndose en una azotea plana como honesta expresión de la evolución tecnológica del proceso constructivo.


El uso del contraste entre el blanco y negro en el acabado de la fachada exterior favorece el marcado de las diferentes volumetrías de esta vivienda.



El proyecto pretende conciliar el lenguaje de la arquitectura moderna con el cumplimiento de las condiciones de integración y estéticas de la normativa urbanística.



INTERIORES
El juego de color entre blanco y negro, seña de identidad de la vivienda, se ve matizado por la existencia de paños de color que remarcan la separación de los espacios.

Así ocurre con la chimenea de color rojo que separa el comedor del salón, estancias que a su vez juegan con la dicotomía blanco-negro, o en la cocina donde el rojo se contrapone al acero.

El salón se ve enmarcado por la doble altura de paredes blancas sobre la que se vuelca el estudio de la planta superior, protegido por una barandilla de cristal para favorecer las vistas y el paso de la luz.


En la cocina también se emplea el color rojo y el aluminio en diversos acabados del mobiliario, rompiendo con la hegemonía del blanco y negro.


En el dormitorio principal el acabado en color blanco favorece más aun la iluminación de esta estancia, que cuenta con un gran ventanal ofreciendo una magníficas vistas.


