
Un ático con terraza es un sueño para muchos, es una de las viviendas más cotizadas y difíciles de encontrar. Y bien es sabido que una terraza puede ser la diferencia entre que un piso se venda o alquile rápido o sea más caro o barato.



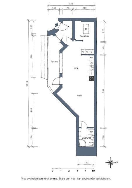
Se trata además de un espacio perfectamente equipado. Cocina con todos los electrodomésticos necesarios, baño con ducha de puertas abatibles, lavadora y secadora, suelo de madera de toda la casa con calefacción radiante y toda la parte acristalada en la zona diáfana de la cocina, comedor y salón hace que sea luminoso y amplio.

















Y por supuesto, una terraza de 7 m² orientada al sur y forrada con láminas de madera de cedro. Un espléndido refugio en días soleados y templados. Una monada de vivienda ¿verdad?


En el próximo post...'Ático abuhardillado de 42 m2'¡No te lo pierdas!
- Fuente -
