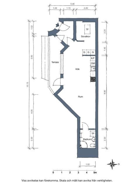
La vivienda soñada por los que viven solos en una gran ciudad, un mini ático bien equipado y con terraza. Este ático de 24 m² en Gotemburgo hará fantasear a muchos.
La mayoría de la gente a la que le gusta vivir en el centro de las ciudad sueña con un ático con terraza, no es ningún secreto que es una de las viviendas más cotizadas y difíciles de encontrar. Hasta hace relativamente pocos años no se le daba tanta importancia a las terrazas y a los espacios exteriores, como ahora. Una terraza puede ser la diferencia entre que un piso se venda o alquile rápido o sea más caro o barato, aunque el interior sea un desastre o igual a muchos otros.
A este ático sueco puede que le falten unos cuantos metros cuadrados de planta, pero os aseguro por lo demás está perfectamente equipado, desde la cocina con todos los electrodomésticos necesarios, al baño con la ducha de puertas abatibles, lavadora y secadora, al suelo de madera de toda la casa con calefacción por suelo radiante o toda la parte acristalada en la zona diáfana de la cocina, comedor y salón hace que sea muy luminoso y amplio.
Y por supuesto la terraza, de 7 m² orientada al sur y forrada con láminas de madera de cedro, el refugio en días soleados y templados. Si os fijais en las últimas fotos, han estado de obras en el tejado y han colocado una ventana en el techo del pequeño dormitorio, que lo mejora un poco si cabe. Una monada de vivienda ¿verdad?
























Vía: Alvhem
