
Hoy, el estudio de arquitectura de A-cero, dirigido por Joaquín Torres & Rafael Llamazares, presenta una nueva promoción de viviendas A-cero Tech. Hoy os mostramos el primer prototipo de vivienda unifamiliar. Consta de 2 niveles (Planta baja + alta), distribuida en 200m2 útiles, y con 1000 m2 de parcela.
CROQUIS

EMPLAZAMIENTO

SECCIONES

ALZADOS


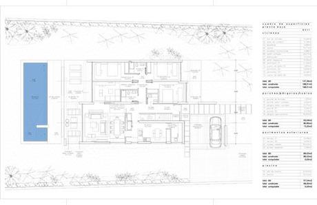
PLANTA BAJA
Este nivel de acceso a la vivienda se desarrolla en 148m2 útiles. En él encontramos tanto la zonás más públicas de la vivienda como son el salón – comedor de 33m2, sala de estar – despacho de 14m2, como las zonas más privadas como son los dormitorios secundarios. Cuenta con 3, dos de ellos con baño común que se distribuyen en 13 y 15m2 con baño de 4m2, y el restante es en suite de 19m2. La vivienda dispone de un amplio hall de 16m2, con aseo de cortesía de 3m2, y cocina de 17m2. Exteriormente se diseñan diferentes porches y pérgolas. Porche de entrada, porche en salón – comedor y pérgola, porche en zona de terraza y pérgola en el aparcamiento para 2 vehículos. En cuanto a pavimentos exteriores, goza de una amplia terraza de 17m2, piscina de 34m2, y la zona de playa que da servicio a la piscina de 24m2.

PLANTA ALTA
Este nivel, se desarrolla en 54m2. En este se sitúa el dormitorio principal de 30m2, con vestidor de 12m2 y cuarto de baño en suite de 11m2. Cuenta exteriormente con un porche en el dormitorio principal.

PLANTA CUBIERTA



Para esta vivienda se han utilizado materiales como la piedra blanca, piedra madera y vidrio transparente.




Vota el Blog A-cero para los premios Bitácoras 2012

