
El estudio de arquitectura de A-cero, liderado por Joaquín Torres y Rafael Llamazares, presenta un nuevo modelo de vivienda aisalda A-cero Tech situada en Francia.
Hace unas semanas os mostramos en un post el proyecto de viviendas adosadas. Esta nueva propuesta de vivienda aislada de 80,25m2, conserva la distribución original en 2 niveles (planta baja y alta) y cubierta no practicable. Hoy os mostramos también 2 tipologías, en las que varían exteriormente la disposición de los materiales.
VIVIENDAS PROTOTIPO I
CROQUIS VIVIENDA ADOSADA

CROQUIS VIVIENDA AISLADA (MODIFICACIÓN)


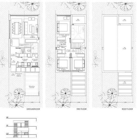
PLANTAS
La planta baja cuenta con una superficie total aproximada de 50m2 distribuidos en un hall de entrada, cocina, un cuarto de limpieza, aseo, un salón comedor de 25m2 aprox. y las escaleras de acceso a la planta alta.
En este nivel distinguimos dos espacios cubiertos en el exterior: un porche de entrada de 5 m2 aprox. y un garaje con capacidad para un vehículo.
En la planta alta, de aproximados 35m2 construidos, accedemos a través de un hall al dormitorio principal de 10,46m2 y a otros dos dormitorios idénticas dimensiones (8,75m2). También se incluye un cuarto de baño de 4 m2 aprox. La planta cubierta no es transitable.

SECCIONES

ALZADOS


EXTERIORES

La fachada de estas viviendas A-cero Tech está acabada en paneles de cemento reforzado gris, vidrio y madera., incluyendo más ventanales que la versión de vivienda adosada.



VIVIENDAS PROTOTIPO II
En este segundo prototipo de vivienda A-cero Tech la disposición interior en los diferentes niveles es prácticamente idéntica a la anterior, variando su diseño en exterior, en la disposición de los materiales de la fachada y del porche.
CROQUIS VIVIENDA ADOSADA

CROQUIS VIVIENDA AISLADA (MODIFICACIÓN)


PLANTAS
La planta baja cuenta también con una superficie total aproximada de 50m2, distribuidos del mismo modo que en el modelo anterior: hall de entrada, cocina, un cuarto de limpieza, aseo, y un salón comedor de 25,74m2 (un poco más amplio que en el modelo I) y las escaleras de acceso a la planta alta.
Del mismo modo nos encontramos en el exterior: un porche de entrada de 5,26m2 y un garaje con capacidad para un vehículo.
En la planta alta, el dormitorio principal cuenta con una superficie ligeramente superior al anterior prototipo, de 13m2. Los otros dos dormitorios mantienen las dimensiones de 8,75m2, más un cuarto de baño de 4 m2 aprox. La planta cubierta tampoco es transitable.

SECCIONES

ALZADOS


EXTERIORES

En este caso, las diferencias de diseño radican en el exterior. En concreto, la disposición de los paneles de madera en ambas fachadas y el diseño inclinado de los pilares del proche. Los acabados, al igual que en el caso anterior, son paneles de cemento reforzado gris, madera y vidrio.



Vota el Blog A-cero para los premios Bitácoras 2012

