
El estudio de arquitectura A-cero, liderado por Joaquín Torres & Rafael Llamazares, presenta nuevas imágenes del proceso constructivo de una vivienda unifamiliar ubicada en Madrid, concretamente, la colocación de la piedra natural en la fachada. La vivienda está estructurada en 3 niveles, distribuidos a lo largo de 900m2.
SECCIONES


ALZADOS


PLANTA SÓTANO
En este nivel de 658,82m2, se diseña un garaje de 215,03m2 con capacidad para 7 vehículos. Incluye un vestíbulo previo de 18,18m2, un distribuidor principal de 11,59 m2 y otro de servicio de 18,18m2, dos fosos ventana correspondientes al salón y cuarto de estar, aperos de jardín, un cuarto de baño de 6,78m2, un aseo de cortesía de 7,14m2, dos cuartos trastero de 79,92m2 y 16,24m2, tres cuartos de instalaciones, lavadero, armero de 21,90m2, bodega de 16,24m2 con aseo de 4,30m2, cuarto de plancha y rack de 13,90m2. A la planta sótano se puede acceder por un ascensor de 2,72m2, una escalera principal a la planta baja o una escalera de servicio a la planta de acceso.

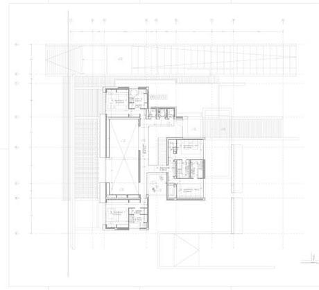
PLANTA BAJA
Este nivel de acceso a la vivienda, con una superficie de 328,40m2, se encuentran las estancias principalmente diseñadas para el uso común. Nos encontramos en la entrada con un vestíbulo de 24,89m2 junto al distrubidor de 30,41m2 y unas escaleras de acceso a la planta alta. Entre las zonas comunes se encuentra un salón de 39,35m2, el comedor de 39,35m2, una sala de estar de 35,34m2, el office de 34,34m2 y la cocina de 22,44m2. También contamos con ropero, un aseo de cortesía de 3,29m2, una despensa de 2,67m2 y una bodega de 1,52m2. Tanto el comedor como el salón cuentan con porche, de 18,412 el primero y 18,70m2 el segundo. Destaca en este nivel la pérgola salón de 86,60m2 por sus amplias dimensiones.

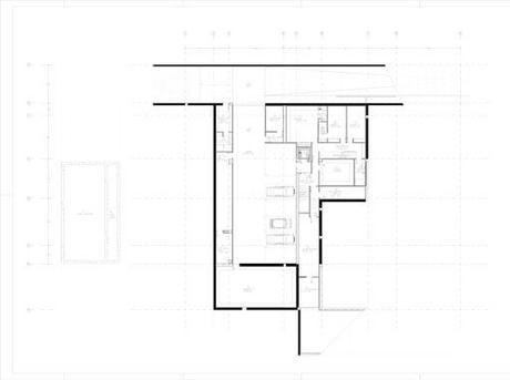
PLANTA ALTA
Este nivel cuenta con una superficie de 264,35m2 dedicada en exclusiva al uso privado. Un distribuidor en pasarela de vidrio de 39,87m2 nos permite el acceso a dos dormitorios principales en suite de grandes dimensiones: 31,21m2 y 30, 93m2, ambos con vestidor de 4,55m2 y 4,22m2 y cuarto de baño de 9,74m2 y 9,92m2, respectivamente. Un segundo distribuidor nos traslada a un espacio para invitados donde observamos dos dormitorios completos de idénticas dimensiones: dormitorio completo de 22,88m2, con cuarto de baño de 9,19m2 y vestidor de 4,43m2. Esta planta incluye también un aseo de cortesía de 2,98m2 y un cuarto de limpieza de 2,60m2.

EXTERIORES



En cuanto a materiales exteriores, la vivienda está terminada en mármol travertino combinado con vidrio negro y vidrio transparente.



IMÁGENES DE OBRA ANTERIORES DE FACHADA








COLOCACIÓN DE DE PIEDRA EN FACHADA






