
El estudio de arquitectura de A-cero presenta nuevas imágenes de obra de un proyecto de vivienda uifamiliar ubicado en una exclusiva urbanización madrileña. El cliente adquirió el terreno conjuntamente con una estructura existente, por lo que se ha aprovechado la misma para construir la vivienda. Se trata de una vivienda dividida en dos niveles, planta sótano y planta baja.
SECCIONES


PLANTA SÓTANO
Este nivel se distribuye a lo largo de 1.140m2. En esta planta se han diseñado las zonas deportivas y de relax, tales como la pista de squas, gimnasio, amplio garaje que dan cabida a 14 vehículos, sala de juegos, jacuzzi, piscina interior, trastero, aseo y baño. En este nivel se sitúa la zona de servicio con 2 dormitorios, distribuidor, lavadero y una cocina. Consta de 2 patios interiores y rampa de garaje.

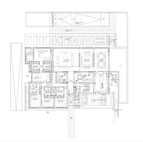
PLANTA BAJA
Este nivel de acceso se ha diseñado para distribuir tanto las zonas más comunes de la vivienda como las más íntimas, a lo largo de 600m2. En el se sitúan 2 amplios salones, cocina y un dormitorio principal en suite con 2 vestidores . Se diseña una sala de estar, un hall, ropero. Se sitúan en este nivel 3 dormitorios secundarios en suite y se habilita un espacio como vestidor para la piscina exterior. En los interiores se encuentran 4 patios de entre y una zona de garaje exterior , Un porche exterior cubre la zona de entrada acompañado de una lámina de agua. Se diseña una terraza para la piscina con una amplia pérgola que da servicio al porche.

IMÁGENES EXTERIORES


Exteriormente la vivienda se caracteriza por su sobriedad estructurada y diseñada en planos de líneas rectas. Se han utilizado colores característicos en el Estudio como son la mezcla del blanco y el negro, y materiales como el marmol travertino y el vidrio negro.


NUEVAS IMÁGENES DE OBRA










