
El estudio de arquitectura A-cero dirigido por Joaquín Torres y Rafael Llamazares presenta nuevas imágenes de obra de un proyecto para una reforma integral de una vivienda unifamiliar situada en la zona noroeste de Madrid. La vivienda cuenta con una superficie de 431,50m2, distribuidos en dos niveles (planta baja y planta alta) con amplios porches, terraza y, una piscina de 50,23 m2.
CROQUIS

SECCIONES

ALZADOS

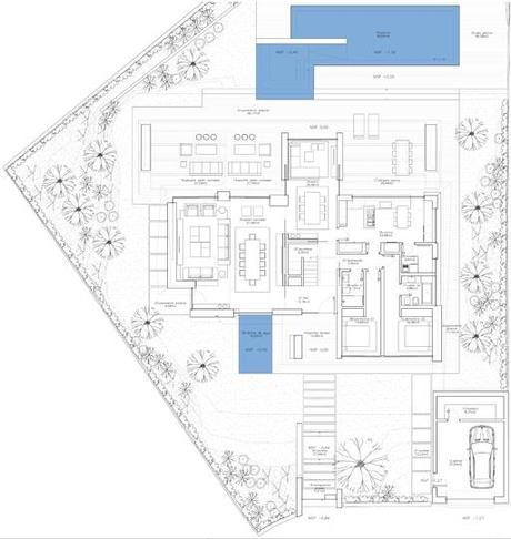
PLANTA BAJA
En este primer nivel de 263,34 m2 se ubican las zonas de uso más común y la zona de invitados. Nos da la bienvenida a la vivienda un hall de 12,18m2, a cuya izquierda nos presenta un salón-comedor de 61,08m2, con una sala de estar adherida, de 26,58m2. En la zona Este de la vivienda se ubica la cocina, a la que se le ha dedicado una superficie de 23,68m2 y, junto a la que podemos encontrar un cuarto dedicado a la lavandería, de 4,63m2. En este mismo área localizamos dos zonas privadas de dormitorios de 12,65m2 y 16,38m2, con dos baños independientes de 4,12m2 y 4,88m2 respectivamente. A través de un camino peatonal que sale de la vivienda podemos acceder a una pequeña edificación que esconde un garaje con capacidad para un vehículo y, un trastero de 8,37m2.
También podemos localizar espacios abiertos cubiertos por porches y pérgolas. La vivienda cuenta con un porche de acceso de 15,80m2 y otro porche para una parte del salón-comedor exterior, de 27,74m2, cubriendo la parte restante una pérgola de 31,53m2. Podemos descubrir otra pérgola correspondiente a la cocina, de 35,44m2. Por último, para el acceso a la parcela nos encontramos con una marquesina de 5,51m2.
En la parte posterior de la vivienda se ubica la piscina con una superficie total de 69,50m2.

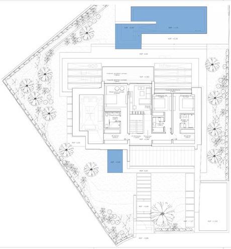
PLANTA ALTA
En este caso, esta superficie de 169,16m2 está dedicada a las zonas privadas de la vivienda. Accedemos a este nivel por unas escaleras ubicadas en el hall de entrada, y que nos conducen a un distribuidor de 11,43m2 que separa las distintas estancias. Por un lado, encontramos una zona con dos dormitorios privados: el primero con una superficie de 13,68m2 y un baño privado de 4,48m2, y el segundo con 14,71m2 de superficie, un baño de 4,98m2 y un vestidor de 7,95m2. Por otro lado, localizamos el dormitorio principal de 20,93m2, con su baño particular de 6,38m2, y su vestidor de 8,25m2. Además, podemos ver una sala de estar de 17,44m2, a la que se puede acceder desde el dormitorio principal, o a través de una pasarela de vidrio que nace en el distribuidor.
Como espacios abiertos que estén cubiertos encontramos un porche de 2,32m2 que comparten los dos dormitorios del Este y, otro porche de 1,60m2 para el dormitorio principal. Además, este dormitorio cuenta también con una terraza de 17,85m2.

PLANTA CUBIERTA

EXTERIORES
IMÁGENES ORIGINALES


PROPUESTA A-CERO
Los materiales exteriores utilizados son piedra caliza blanca y vidrio negro. Podemos ver también troncos separatorios, realizados en material de resina sintético.

Bajo el porche y la pérgola encontramos dos sofás con chaiselonge, modelo Rest, terminados en resina de polietileno. El pavimento que rodea la vivienda está igualmente realizado en piedra caliza blanca.

En la siguiente imagen podemos contemplar la terraza del dormitorio principal, protegida por láminas de vidrio negro como barandilla.

Destacan en el diseño de la edificación las formas geométricas de líneas puras.

INTERIORES
IMÁGENES ORIGINALES


PROPUESTA A-CERO
El salón-comedor es una estancia a doble altura. En una cota algo superior ubicamos la parte destinada al comedor, en la que encontramos la mesa modelo Capri, realizada su base en acero pulido y, sobre ella, una lámina de vidrio. La rodean las sillas modelo Rest, inspiradas en el arte japonés del Origami, basado en el plegado del papel para obtener figuras de formas variadas, y en la línea del pensamiento “Less is more”.
En un nivel ligeramente inferior nos topamos con el salón, donde localizamos varios sofás modulares del modelo Ace. Junto a éstos, unas mesas de centro modelo Ambae, terminadas en madera lacada de color negro. Con el fin de romper la armonía del color blanco y de darle apoyo al color de las mesas de centro, la pared del salón se ha terminado en color negro.
Como elementos decorativos podemos ver las bolas de A-cero in y, en la pared del comedor, un cuadro en tonos claros de Mercedes Rodríguez.

En el hall se ubican las escaleras por las que se asciende al nivel superior de la vivienda. Al final de su primer tramo podemos ver una estantería, y a su lado derecho la pasarela de vidrio que nos conduce a la sala de estar de este nivel.
En el piso inferior podemos contemplar un pedestal terminado en blanco disponible en A-cero in, del que depende una decoración floral. Junto a éste, un cuadro en escala de grises que ocupa todo el pasillo.

IMÁGENES DE OBRA












