
El estudio de arquitectura A-cero, dirigido por Joaquín Torres y Rafael Llamazares, presenta una nueva propuesta de interiorismo para el dormitorio principal de la vivienda unifamiliar A-cero en Sevilla.
Esta propuesta se encuentra dentro de un proyecto de reforma integral de una vivienda con una superficie total de 720 m2 distribuidos en cuatro niveles: planta sótano, planta baja, planta primera y planta cubierta.
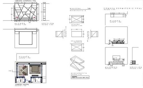
SECCIONES Y PLANO

VISTAS
El elemento protagonista del dormitorio principal es el cabecero escultórico que hace las veces de estantería, sobre un panel en madera lacada brillo colo negro. Junto a la cama observamos dos mesas auxiliares con un diseño en zig zag, recordando las formas del cabecero.

Frente a la cama encontramos también una cómoda realizada en DM diseñada por A-cero con un diseño de líneas rectas y planos inclinados. El dormitorio queda enmarcado en sus laterales por dos grandes ventanales. Existe una entrada al dormitorio donde se localizan dos muebles en madera lacada negra diseñados por A-cero.

Un cuadro de Mercedes Rodríguez marca la verticalidad de el muro acabado en color gris, en contraste con la madera clara del suelo. Frente a uno de los ventanales vemos un área de descanso formado por dos butacas y una mesa cilíndrica auxiliar.

PISCINA EXTERIOR
Os dejamos también en este post una nueva imagen de la piscina exterior de la vivienda, donde podemos ver elementos de piedra que se incorporan al interior de esta, introduciendo la arquitectura de la vivienda en este ambiente.

