
Textos:De la redacción de Croquizar. Decir mucho, en pocas líneasEn base a fuentes libres citadas en el artículo
En Aomori, la prefectura más septentrional de Honshu —la isla más grande de Japón—, está la ciudad de Towada para la que Kengo Kuma ha diseñado este centro comunitario.
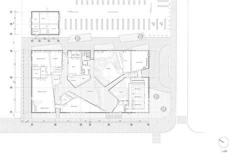
Las fachadas presentan de forma alterna tablones de madera y superficies acristaladas que, junto a una cubierta zigzagueante, dan cobijo a un amplio vestíbulo central.
Alrededor de éste se organizan oficinas, salas polivalentes, una galería expositiva y un aula de cocina, además de una guardería y una zona infantil de juegos donde las tarimas de madera se elevan conformando colinas ondulantes.









Fuente
