
El estudio de arquitectura de A-cero, dirigido por Joaquín Torres y Rafael Llamazares, presenta un nuevo proyecto A-cero Tech personalizado al oeste de Madrid. Se trata de una vivienda unifamiliar de 378m2 construidos, distribuida en planta sótano, planta baja y planta alta.
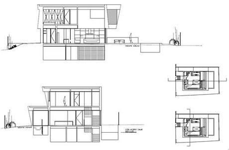
ALZADOS

SECCIONES

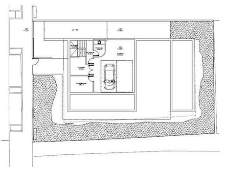
PLANTA SÓTANO
Este nivel cuenta con un superficie total útil de 85m2 donde encontramos un garaje con capacidad para dos vehículos, cuarto de instalaciones, trastero, lavadero, vestíbulo y escalera de acceso.

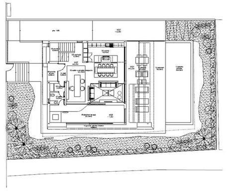
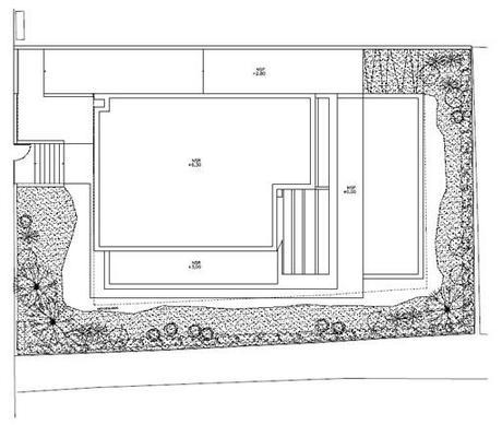
PLANTA BAJA
En el interior de este nivel de más de 120m2 construidos encontramos el acceso principal a la vivienda y las principales zonas de uso común. Se distribuye en un hall de acceso, una estancia que haces la veces de salón-comedor-despacho, cocina, vestíbulo, escalera, ropero, aseo y una piscina interior-jacuzzi. Cuenta además con dos porches, de acceso y de piscina interior, y una pérgola que abarca la cocina y el salón comedor. En el exterior encontramos una zona de solarium y una piscina de 38m2.

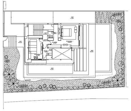
PLANTA ALTA
En el nivel superior, de 100m2 construidos, encontramos las estancias de uso privado de la vivienda. Tras un vestíbulo nos encontramos con el acceso al primer dormitorio en suite por su vestidor. El segundo dormitorio cuenta también con su propio cuarto de baño.

PLANTA CUBIERTA

VISTAS

Esta vivienda personalizada A-cero Tech cuenta con un diseño único, una fachada escultórica donde se crea un juego de volúmenes a partir de la inclinación de diferentes planos entre niveles.

La fachada de la vivienda se realiza en paneles de cemento reforzado color blanco y paneles de aluminio y vidrio negro, logrando un contraste que rompe con la monocromía de la vivienda.

Las líneas rectas y los planos inclinados son los protagonistas en el diseño de esta vivienda, donde grandes paños de vidrio permiten la entrada de luz al interior.

El interior comparte el contraste de los acabados de la fachada. El color blanco es el protagonista, buscando la continuidad en los espacios. Estancias diáfanas como el salón comedor a doble atura, comunicadas al exterior gracias a los paños de vidrio y los diferentes porches.

