
El estudio de arquitectura A-cero, liderado por Joaquín Torres, quiere mostraros hoy su nuevo proyecto de interiorismo para un apartamento ubicado en un exclusivo complejo residencial situado en Ibiza y todavía en fase de ejecución: Life Marina Ibiza. Se trata de un complejo residencial de 279 viviendas. Está compuesto por 2 edificios diferentes y de formas singulares sobre láminas de agua; ambos tendrán 6 plantas y albergarán apartamentos de entre 75 y 300 metros, una gran piscina rodeada de espacios ajardinados, una zona de relax, un club social, zona de fitness y miniclub.
EMPLAZAMIENTO

CROQUIS


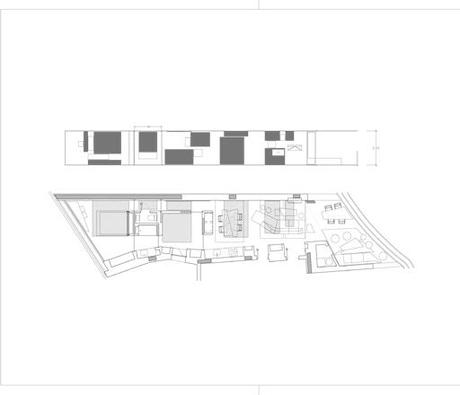
PLANTA GENERAL

Os dejamos a continuación el mobiliario que integrará el diseño de interiores, las fotos de obra (el proyecto todavía está en ejecución) y las diversas propuestas que hemos ido barajando a la hora de articular el espacio disponible.
MOBILIARIO
MESA COMEDOR

CAMA DORMITORIO PRINCIPAL

MESA DORMITORIO PRINCIPAL

CAMA DORMITORIO SECUNDARIO

MESA DE CENTRO SALÓN

MESA AUXILIAR SALÓN

MUEBLE APARATOS SALÓN

MESA COMEDOR PORCHE

MESA CENTRO PORCHE-OPCIÓN 1

MESA CENTRO PORCHE-OPCIÓN 2

EXTERIOR
Lo impresionante de este complejo residencial de lujosos apartamentos, dispuestos como un teatro italiano, será el colorido de sus onduladas terrazas, los muros vegetales y el agua.



OBRA





PROYECTO
Las propuestas de A-cero recogen las premisas en las que se basa el diseño de todo el complejo y suponen la prolongación natural interior a las líneas y conceptos exteriores. Aquí tenéis la proyección de dos estancias, un dormitorio y el espacio principal de la vivienda, el salón.
PROPUESTAS SALÓN




Se proyecta un trabajo de gran frescura, limpieza y amplitud, donde la verdadera protagonista es la luz de la isla, que inunda y articula el interior, especialmente diáfano. Se emplean elementos decorativos muy orgánicos, de inspiración marina reforzada por tonos y colores mayoritariamente azules, turquesa o verdes, junto al color blanco predominante y característico del estudio A-cero.
PROPUESTAS DORMITORIO






