
El estudio A-cero, dirigido por Joaquín Torres y Rafael Llamazares, presenta un nuevo proyecto de vivienda unifamiliar ubicada al Noreste de la Península. La vivienda cuenta con una superficie total construida de +520m2 repartidos en planta sótano, planta baja y planta alta.
CROQUIS

ACCIONES

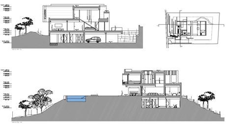
SECCIONES

EMPLAZAMIENTO

PLANTA SÓTANO
En este nivel de +186m2 nos encontramos con diferentes zonas de uso común ,, servicio e instalaciones como: escaleras, corredor, almacén, ascensor, gimnasio, baño de gimnasio, sauna, jacuzzi, corredor de servicio, lavadero, tendedero, dormitorio de servicio, baño de servicio, almacén de bicicletas/motos garaje y cuarto de instalaciones.En el exterior cuenta con dos porches (garaje y acceso peatonal) y un acceso rodado.

PLANTA BAJA
La planta baja cuenta con +175m2 repartidos en zonas de uso común como el hall, distribuidor, aseo de cortesía, cocina, despensa, salón comedor y despacho. En el exterior distinguimos tres porches (entrada, salón-comedor y barbacoa), cuatro terrazas, un acceso peatonal y la piscina.

PLANTA ALTA
En este nivel de 158m2 distinguimos los espacios más privados de la vivienda, como el dormitorio principal (con distribuidor, dos vestidores, cuarto de baño y porche exterior), una sala de estar y tres dormitorios en suite con cuartos de baño independientes.

PLANTA CUBIERTA
En el exterior, la vivienda cuenta con un total de 118m2 en porches repartidos por los tres niveles, 290 m2 en terrazas y pavimentos exteriores, y piscina que ocupa una superficie de 157m2

VISTAS EXTERIOR
Para este diseño el estudio vuelve a sus orígenes proyectando volúmenes ortogonales donde las líneas rectas y el juego de planos son protagonistas.

La entrada a la vivienda viene enmarcada en una caja de doble altura en contraste con el acabado general de la fachada en piedra.

El dormitorio principal viene enmarcado igualmente en la fachada posterior mediante un volumen que se proyecta rompiendo la continuidad del paño de vidrio negro.

Los paneles de aluminio negro crean un contraste con el acabado en piedra clara de la fachada. La proyección de diferentes volúmenes se ve acompañada con amplios ventanales que comunican el interior de la vivienda con su eentorno.

Desde el exterior la vivienda guarda una apariencia de bloque hermético guardando la privacidad del cliente de las miradas indiscretas.

VISTA INTERIOR
En el interior se plantea una combinación de acabados en tonos blancos y madera, que juegan en los espacios de doble altura. El diseño responde a una integración de la propia arquitectura al interior, acompañada de la línea de mobiliario diseñada por A-cero.

