
El estudio A-cero, dirigido por Joaaquín Torres y Rafael Llamazares, presenta un nuevo proyecto de vivienda unifamiliar ubicado en la Comunidad de Castilla – La Mancha de 475m2 dividido en 3 niveles: planta sótano, planta baja y planta alta.
CROQUIS

ALZADOS

SECCIONES

SITUACION

PLANTA SÓTANO
Este nivel de 140m2 alberga el garaje, cuarto de instalaciones, dos trasteros ascensor y otras estancias dedicadas al almacenaje.

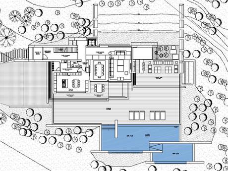
PLANTA BAJA
El acceso principal a la vivienda se sitúa en este nivel de 160m2 distribuidos en un hall de entrada, escaleras, salón comedor, distribuidor, cocina, aseo y lavadero tendedero. Cuenta con cuatro porches (acceso, cocina, comedor y salón) terraza y piscina exterior de 123m2.

PLANTA ALTA
En planta alta, de 135m2, encontramos las estancias más privadas de la vivienda comunicadas por una pasarela y un distribuidor: un dormitorio principal (con acceso, cuarto de baño y vestidor), un despacho y tres dormitorios con cuarto de baño en suite.

PLANTA CUBIERTA

VISTAS

Exteriormente nos encontramos con una vivienda de marcado carácter escultórico. El diseño exterior responde a un diseño orgánico donde se unen líneas rectas y curvas que forman diferentes volúmenes, dando lugar a un conjunto escultural que se alza imponente sobre el terreno.

La vivienda presenta diferentes acabados en la fachada, que ofrecen visualmente diversas texturas al conjunto. Se observan grandes paños acristalados que permite la entrada de luz natural. Mientras que los grandes volúmenes se resuelven en hormigón.

Los volúmenes o cajas de hormigón que se aprecian en las fachadas laterales desde el exterior, dan una sensación de fortaleza que protege la intimidad de los habitantes tras estos muros escultóricos.



Se plantea un interiorismo acorde con la propia arquitectura de la vivienda, dando lugar a dobles alturas y volúmenes bajo una decoración minimalista y de vanguardia.

