
En este post os presentamos el proceso constructivo de la vivienda hasta ahora más grande que sale de la fábrica de A-cero Tech situada en Onda – Castellón. Se trata del modelo “Cubic Evolution” con una superficie de más de 200 m2 distribuidos en dos plantas. Para esta vivienda se han trasladado 7 módulos, pues su avanzado diseño y acabado conlleva el montaje de voladizos, pérgolas, porches y otros elementos arquitectónicos.
Se subieron los módulos a los camiones – góndola el pasado martes 24 en la fábrica y se procedió al traslado a la localidad de Sanlúcar de Barrameda, con un tiempo estimado de 36 horas.
A-cero Tech tuvo que coordinar con las autoridades de Sanlúcar un dispositivo especial de tráfico para que los camiones pudieran atravesar la localidad y llegar a la parcela situada en una zona residencial próxima a la playa, donde con una grúa descargó de manera organizada los módulos. En un tiempo aproximado de 8 horas la vivienda se instaló en el terreno sobre la cimentación procediendo posteriormente a los remates de ensamblaje y acabado.
LOCALIZACIÓN

La vivienda es el modelo estándar ”Cubic Evolution”, uno de los mas modernos diseñados por A-cero Tech. Los acabados exteriores escogidos por la propiedad son el Euronit blanco combinado con vidrio negro. Esta vivienda pertenece a una segunda generación de viviendas que produce propiamente en su fábrica el Grupo A-cero. Si bien, los diseños siguen evolucionando, y ya está disponible una tercera generación de modelos con unos diseños más curvos y sugerentes, y con precios desde los 69.000 €, para la vivienda de 1 dormitorio. La vivienda consta de 2 niveles, planta baja y planta alta en 247m2. La diferencia respecto al modelo cubic anterior es la ampliación del salón (10m2 más) y el porche exterior.
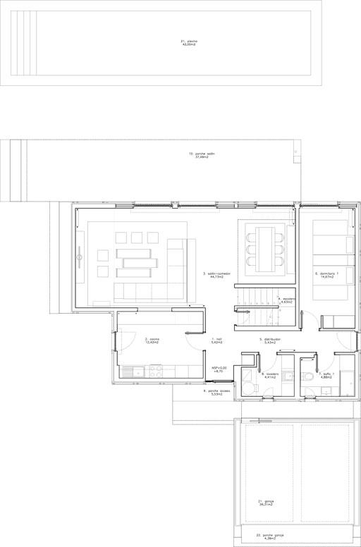
PLANTA BAJA
Este nivel consta de 161,93 m2 construidos. Esta planta se ha destinado a ubicar la zonas de uso común de la vivienda. Amplio salón – comedor de 46,78m2, cocina de 12,66m2, distribuidor de 5,66m2 hacia el dormitorio de 11,61m2 y baño de 4,862m2 que se puede destinar su uso a la zona de servicio ya que linda a él la cocina y el cuarto lavadero tendedero de 4,82m2. Hall de entrada de 5m2. En cuanto a exteriores, se ha diseñado un acceso al porche de 6m2, y una pérgola de grandes dimensiones que da servicio al salón – comedor de 35,68m2.

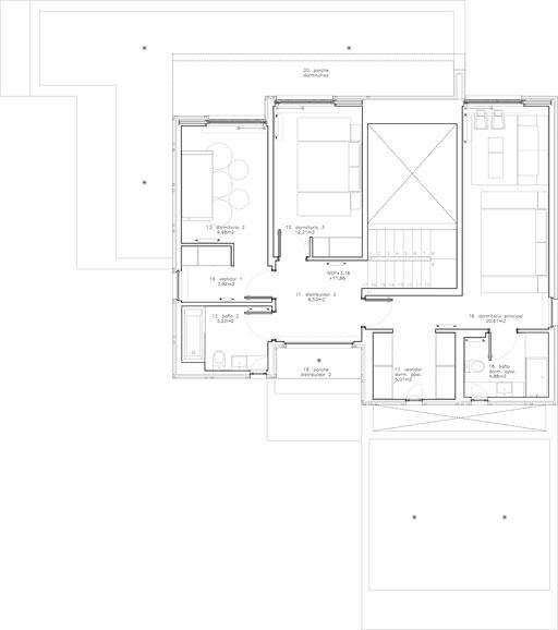
PLANTA ALTA
Este nivel consta de una superficie total de 86,49m2. Distribuidor de 7,21m2, dormitorio principal en suite de 17,48m2, y baño de 4,97m2 y vestidor de 5,12m2. Dos dormitorios secundarios de 12,94m2 y 13,77m2 con un baño común de 5,22m2.

Se ha utilizado para las fachadas, materiales como el euronit y la madera, aunque se pueden variar las calidades a elección del cliente, como en este caso, que el cliente ha escogido el euronit con el vidrio negro, que os mostraremos en el próximo post con la vivienda sobre la parcela.
Este nuevo modelo, respecto al anterior, refleja exteriormente mayor movimiento a través de sus muros inclinados, una línea ya conocida por el estudio A-cero.
EN LA FÁBRICA A-CERO TECH EN ONDA – CASTELLÓN



TRASLADO EN LOS CAMIONES GÓNDOLA


PROCESO CONSTRUCTIVO
Os dejamos las imágenes del proceso constructivo de esta vivienda A-cero Tech en Cádiz…














En breve os mostraremos las imágenes definitivas de esta vivienda con fotografías de su interior…
